2330 Dunaharaszti Petőfitelep
Ingatlan sorszáma: 8986
930 851 Ft / m2
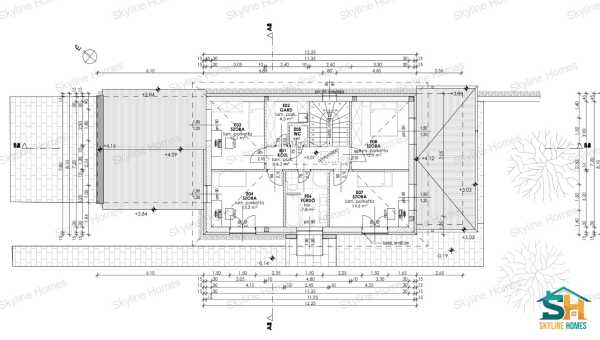
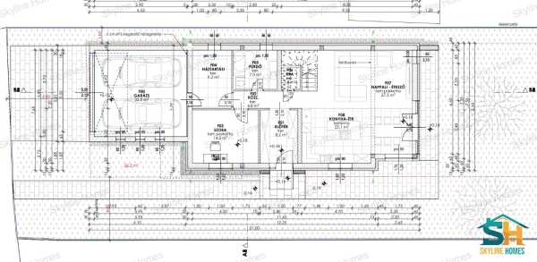
ÚJ PROJEKT INDUL DUNAHARASZTIN – ÖNÁLLÓ, TÁGAS, 2 SZINTES CSALÁDI OTTHON LEKÖTHETŐ! Dunaharaszti Petőfi-liget városrészében, egy 566nm-es önálló telken hamarosan indul egy új, modern családi ház építése! Amint megérkezik a vásárló, az építkezés azonnal megkezdődik. Az alaprajz még módosítható, így a végleges elrendezés a vevő igényeire szabható. A környék infrastruktúrája kiváló – sétatávolságon belül elérhető: pékség, zöldséges, hentes, éttermek, üzletek, iskola, óvoda előszoba amerikai konyhás nappali étkezővel 5 hálószoba 2 fürdőszoba külön WC gardrób kamra háztartási helyiség 32 nm-es dupla garázs Műszaki tartalom: 30 cm-es tégla falazat + 15 cm hőszigetelés födém szigetelése: 25 cm tető: betoncserép 3 rétegű műanyag nyílászárók padlófűtés kondenzációs gázkazánnal vagy hőszivattyúval 3 kW napelemrendszer az árban hűtő-fűtő klíma előkészítés riasztórendszer kiépítésének előkészítése mészkő párkányok és homlokzati díszburkolat az árban Energetikai besorolás: B Burkolatok választhatók: hideg és meleg burkolatok 6 000 Ft/m²-ig a vételár része. Már 2 millió Ft-tal leköthető, ezt követően 20% önerő szükséges. Várható átadás: Vásárt követő 1 év a kulcsátadás ideje! A kivitelező tőkeerős és számos megtekinthető referenciaházzal rendelkezik – külső és belső kivitelezés egyaránt megtekinthető! Ha kérdése van, keressen bizalommal a 0630 283 4313 számon! info.skylinehomes@gmail.com Ha nem tudom felvenni, visszahívom! Hitelügyintézésben, valamint meglévő ingatlanja eladásában is segítünk!
Lépjen velünk kapcsolatba!
Temesvári László
Skyline Homes
A partner további hirdetései
Kapcsolatfelvételhez kattintson
A tétel adatlapján feltüntetett leírások a rendelkezésre álló információink alapján készültek. Az eszközök működőképességét, rejtett hibáit nem vizsgáltuk, azokról nincs tudomásunk. Kérjük, hogy licitálás előtt személyesen is tekintsék meg a megvásárolni kívánt tételeket, mert utólag nem tudunk reklamációt elfogadni. A szállítási és bontási költségek a vásárlót terhelik. A szállítást akkor lehet megkezdeni, ha az eladó az erre vonatkozó engedélyt megadta. A leütési ár nem tartalmazza az ÁFÁ-t és a vásárlói felárat.