2900 Komárom Belváros
Ingatlan sorszáma: 8825
937 197 Ft / m2
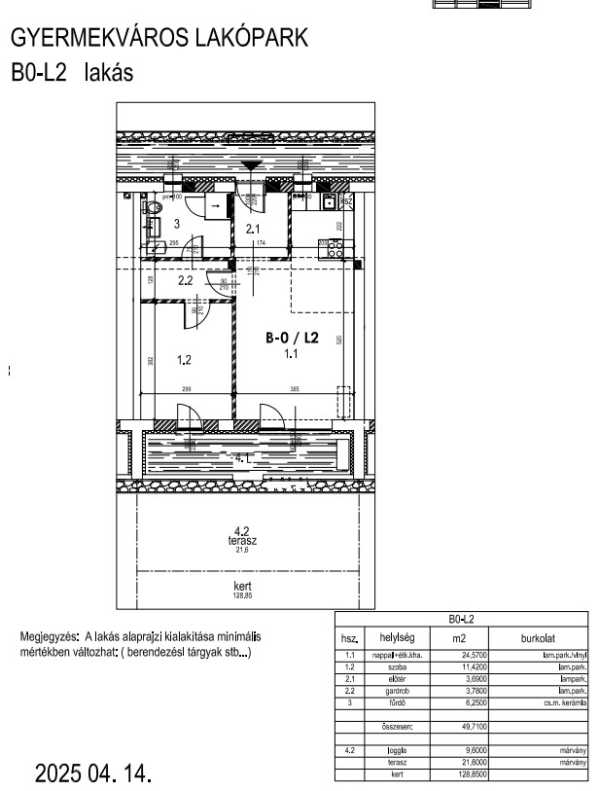
ÁR-ÉRTÉK arányban verhetetlen lehetőség! Ne hagyja ki! Már csak néhány lakás maradt! Csapjon le új otthonára, vagy befektetési lehetőségnek is kiváló választás. Gyermekváros Lakópark, Kényelem és érték Komárom szívében. Fedezze fel a Gyermekváros Lakóparkot, ahol a modern életstílus találkozik a természet szépségével. Kiváló minőségű lakások különböző elrendezésekben, privát kertekkel és teraszokkal, mindez Komárom egyik legjobb helyén. Ideális választás azoknak, akik kényelmes otthont vagy hosszú távú befektetést keresnek. - kiváló elhelyezkedés - modern felszereltség - vonzó bérleti hozam - stílusos otthonok - prémium életmód A Gyermekváros Lakópark ötvözi a modern életstílust és a természet szépségét, nyugodt, mégis kényelmes életmódot biztosítva lakóinak. A lakópark egy buja zöld környezetben helyezkedik el, amely garantálja a nyugalmat és a friss levegőt. A komplexum prémium anyagokból, magas minőségű kivitelezéssel készült, amely biztosítja a tartósságot és a hosszú távú értéket. Közelség a Városközponthoz, Tömegközlekedéshez, Bevásárlóhelyekhez és Iskolákhoz! KÜLÖNLEGES BEFEKTETÉSI LEHETŐSÉG MODERN KÉNYELMI SZOLGÁLTATÁSOKKAL ÉS FENNTARTHATÓ ÉLETMÓDDAL! Kényelmi Szolgáltatások: - Magas minőségű kivitelezés - Privát és vendégparkoló - Kerékpártároló - Biztonságos kapuval ellátott bejárat - Kertépített közös területek gyümölcsfákkal és dísznövényekkel - Zöld területek és erdős környezet Szerkezetkész Lakások: Félig kész lakásaink ára 750.000,- Ft/nm-től kezdődik, és olyan alapvető jellemzőkkel rendelkeznek, mint a hőszivattyús klímával történő fűtés, alap fürdőszobai berendezések, antracit színű fém ablakok és erkélyajtók, valamint vakolt falak. A kertek durva terepállapotban, határnövényekkel kerülnek átadásra. Ez az opció lehetőséget ad arra, hogy személyes stílusával alakítsa ki az ideális otthonát. Loggia: 375.000,- Ft/nm Terasz: 120.000,- Ft/nm Kert: 19.000,- Ft/nm Előkert: 5.000,- Ft/nm Kulcsra kész Lakások: A teljesen kész lakások ára 950.000,- Ft/nm-től kezdődik, és azonnal beköltözhetőek. Standard padlóburkolattal rendelkeznek, amely parkettát és kerámia csempét tartalmaz, belső ajtókkal és fehér sima festéssel az egész lakásban. A fürdőszobák teljesen felszereltek, a teraszok és loggiák burkolva vannak. Ezek az egységek gondtalan életvitelt biztosítanak, minden szükséges felszereltséggel és kivitelezéssel. Loggia: 475.000,- Ft/nm Terasz: 200.000,- Ft/nm Kert: 19.000,- Ft/nm Előkert: 5.000,- Ft/nm B/0-L2 lakás földszinti, 49 nm-es. Tartozik hozzá egy 9,6 nm-es Loggia, 21,6 nm-es Terasz, 128 nm-es saját Kert. Helységek: Amerikaikonyhás nappali+étkező, 1 szoba, 1gardrób, 1 fürdőszoba wc-vel és közlekedő. Szerkezetkész ára: 45.922.650 Ft Kulcsrakész ára: 58.552.650 Ft Már 20% előleggel elvihető!!! Műszaki átadás várható időpontja: 2026. május Szerkezetkész átadás várható időpontja: 2026.06.30. Adatbázisunkban számos eladó-kiadó ingatlan közül választhat. Személyre szabott ügyintézéssel, ügyvédi háttérrel állunk ügyfeleink rendelkezésére. Minden egy helyen, az ingatlan bemutatásától a birtokba adásig! Díjmentes és bankfüggetlen hitelügyintézés! Hitelminősítés a Fő téri irodánkban a hét minden napján. Várjuk hívását!
Lépjen velünk kapcsolatba!
Balogh Diána
Sikeres Ingatlaniroda
A partner további hirdetései
Kapcsolatfelvételhez kattintson
A tétel adatlapján feltüntetett leírások a rendelkezésre álló információink alapján készültek. Az eszközök működőképességét, rejtett hibáit nem vizsgáltuk, azokról nincs tudomásunk. Kérjük, hogy licitálás előtt személyesen is tekintsék meg a megvásárolni kívánt tételeket, mert utólag nem tudunk reklamációt elfogadni. A szállítási és bontási költségek a vásárlót terhelik. A szállítást akkor lehet megkezdeni, ha az eladó az erre vonatkozó engedélyt megadta. A leütési ár nem tartalmazza az ÁFÁ-t és a vásárlói felárat.