7083 Tolnanémedi
Ingatlan sorszáma: 8706
215 200 Ft / m2
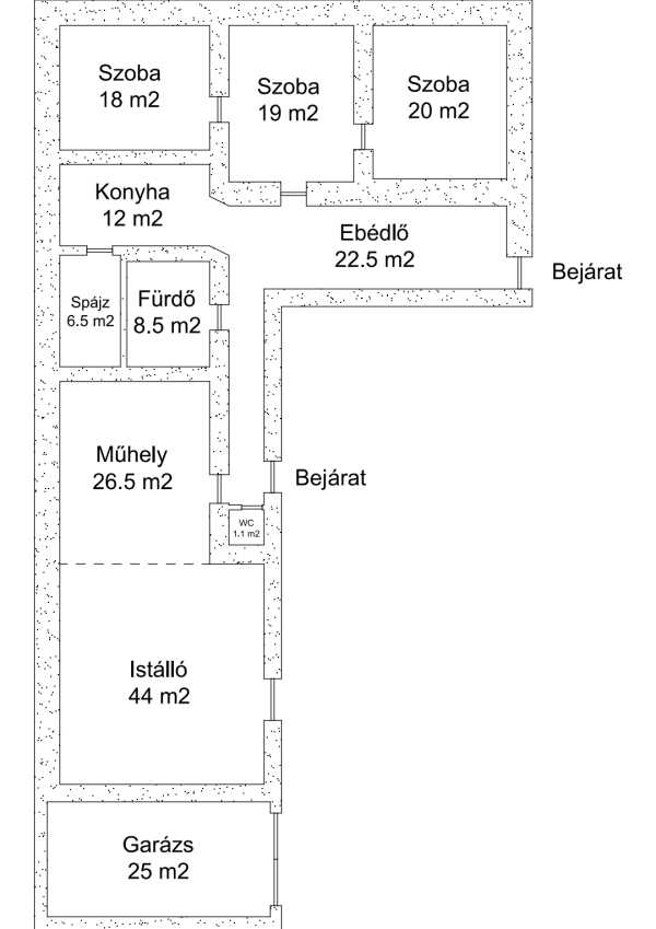
Szeretne kiszakadni a nagyváros zajából, és átélni a nyugodt, lassabb hétköznapok örömét? Vágyna arra, hogy a mindennapok ne a rohanásról, hanem a békéről és a családi harmóniáról szóljanak? Akkor ez a ház Önre vár! Ez a 125 m²-es, teljes körűen felújított családi ház egy tágas, 2515 m²-es telken helyezkedik el, amely rengeteg lehetőséget kínál a család minden tagjának. Ideális választás kisgyermekes családoknak és családot tervezőknek: a ház elrendezése praktikus, a helyiségek különállóak, így mindenki megtalálja benne a saját nyugalmát. Amikor beléptem, az otthonosság érzése azonnal magával ragadott: a meleg hangulat, a barátságos kisugárzás azonnal átjárja az embert, és ez az élmény a tulajdonosaként csak tovább erősödik. A bejárat egy praktikus folyosóra nyílik, ahonnan a ház további helyiségei könnyen elérhetők. A ház teljes felújításon esett át: új tető került fel, a villanyhálózat (3x25 amper, H-tarifa), a vízvezetékek és a csatorna kiépítése modernizált, így az ingatlan műszakilag korszerű állapotban van, és azonnal beköltözhető. A hatalmas telek rengeteg lehetőséget kínál: kertészkedéshez, állattartáshoz, pihenéshez, vagy akár bővítéshez is. A meglévő ólak és tyúkólak azonnal használhatóak, a jó minőségű termőföld pedig lehetővé teszi a kisebb gazdálkodást is. A kert teljesen körbejárható, így a szabadság és a mozgás élményét nyújtja kicsiknek és nagyoknak egyaránt. A nagy ablakok egész nap természetes fényt engednek a helyiségekbe, ami nemcsak hangulatos, de energiatakarékos is, hiszen a fűtési költségeket is csökkenti. A telek átmenő forgalomtól mentes, csendes utcában található, így zavartalanul élvezheti a nyugalmat. A házhoz pince is tartozik, ami további tárolási lehetőséget biztosít. Ez az ingatlan stabil, statikailag tökéletes állapotban van, így akár vállalkozás kialakítására is alkalmas. A ház minden részlete a kényelemről, a praktikusságról és a nyugodt, boldog otthonról szól. Belopta magát a szívébe? Hívjon, és egyeztessünk időpontot a megtekintésre – meglátja, élőben még elbűvölőbb! Ha pedig kedvező hitellehetőséget szeretne igénybe venni az ingatlanvásárláshoz, ebben is szívesen segítünk. Banki tanácsadónk rövid konzultációt követően 12 bank ajánlata közül választja ki az Önnek legmegfelelőbbet. Gyors ügyintézésünknek köszönhetően két hónapon belül már birtokba is veheti az ingatlant.
Lépjen velünk kapcsolatba!
Szalainé Atovics Barbara
Büki Immobilien
A partner további hirdetései
Kapcsolatfelvételhez kattintson
A tétel adatlapján feltüntetett leírások a rendelkezésre álló információink alapján készültek. Az eszközök működőképességét, rejtett hibáit nem vizsgáltuk, azokról nincs tudomásunk. Kérjük, hogy licitálás előtt személyesen is tekintsék meg a megvásárolni kívánt tételeket, mert utólag nem tudunk reklamációt elfogadni. A szállítási és bontási költségek a vásárlót terhelik. A szállítást akkor lehet megkezdeni, ha az eladó az erre vonatkozó engedélyt megadta. A leütési ár nem tartalmazza az ÁFÁ-t és a vásárlói felárat.