5051 Zagyvarékas
Ingatlan sorszáma: 8686
267 123 Ft / m2
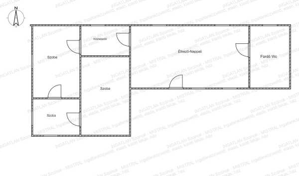
Eladó Zagyvarékason egy két és fél szobás, felújított 73 nm-es,családi ház! Amit az ingatlanról tudni érdemes: -vegyes falazatú ,beton alapon -fűtése gázkonvektor,valamint hűtő fűtő klíma -redőnnyel ellátott fa nyílászárók -a ház kívül,belül felújításra került -rendezett udvar két utcára nyílik -az 540 nm-es telken találhatók gazdasági épületek,melyek állattartásra alkalmasak Ide csak költözni kell! Az ingatlanról, a hirdetésben szereplő információk a megbízótól kapott adatok alapján készültek, irodánk azokért felelősséget nem vállal. Hívjon nézzük meg együtt! Szolnoki ingatlanra cserélhető,érték egyeztetéssel A fenti információkat a tulajdonostól kaptuk, melyért felelősséget nem vállalunk!ket!
Lépjen velünk kapcsolatba!
Kiss Ferencné
Mistral Ingatlan Kft Szolnok
A partner további hirdetései
Kapcsolatfelvételhez kattintson
A tétel adatlapján feltüntetett leírások a rendelkezésre álló információink alapján készültek. Az eszközök működőképességét, rejtett hibáit nem vizsgáltuk, azokról nincs tudomásunk. Kérjük, hogy licitálás előtt személyesen is tekintsék meg a megvásárolni kívánt tételeket, mert utólag nem tudunk reklamációt elfogadni. A szállítási és bontási költségek a vásárlót terhelik. A szállítást akkor lehet megkezdeni, ha az eladó az erre vonatkozó engedélyt megadta. A leütési ár nem tartalmazza az ÁFÁ-t és a vásárlói felárat.