3070 Bátonyterenye Maconka
Ingatlan sorszáma: 8669
121 930 Ft / m2
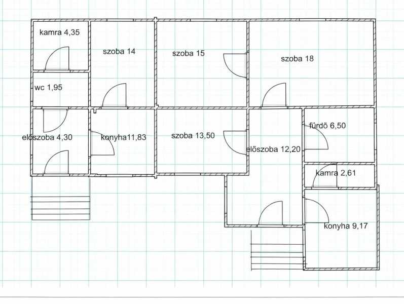
Bátonyterenye csendes, nyugodt részén, a közkedvelt maconkai horgásztótól mindössze kb. 500 méterre kínálunk megvételre egy 114 m² alapterületű, felújítandó családi házat, amely ideális választás mindazok számára, akik saját ízlésük szerint szeretnék kialakítani otthonukat. Az ingatlan egy 2163 m²-es, sík, körbekerített telken helyezkedik el, amely bővelkedik termő gyümölcsfákban, így tökéletes teret biztosít a családi élethez, kertészkedéshez vagy akár gazdálkodáshoz. A telken található továbbá kút, nyári konyha és gazdasági épület is, ami tovább növeli a lehetőségek tárházát. A ház az 1960-as években épült, kő lábazattal és vályogtéglából. Jelenlegi állapota felújítást igényel, azonban stabil alapot nyújt egy modern, személyre szabott otthon megvalósításához. A négy szobás elrendezés tágas életteret biztosít, és könnyen átalakítható – akár egy amerikai konyhás nappali is kialakítható. A fűtésről gáz- és házközponti rendszer gondoskodik, így a téli hónapokban is komfortos hőmérséklet biztosított. A nyílászárók többsége fa, az utcafronti ablakok már műanyagra lettek cserélve. A tetőszerkezet felújításra vagy cserére szorul. Az ingatlan összkomfortos, a parkolás pedig egy szerelőaknás garázsban megoldott. A környezet panorámás, csendes mellékutcában található, barátságos szomszédokkal – ideális választás mindazok számára, akik nyugalomra és természetközeli életre vágynak. Ez az ingatlan remek lehetőség azoknak, akik értéket látnak egy felújítandó házban, és szívesen alakítják azt saját elképzeléseik szerint álomotthonná. Igény esetén a felújításhoz megbízható kivitelezőket is tudok ajánlani, ezzel is megkönnyítve az új tulajdonos számára a munkálatok elindítását.
Lépjen velünk kapcsolatba!
Fekécs Nóra
Gyémánt Ingatlaniroda Salgótarján
A partner további hirdetései
Kapcsolatfelvételhez kattintson
A tétel adatlapján feltüntetett leírások a rendelkezésre álló információink alapján készültek. Az eszközök működőképességét, rejtett hibáit nem vizsgáltuk, azokról nincs tudomásunk. Kérjük, hogy licitálás előtt személyesen is tekintsék meg a megvásárolni kívánt tételeket, mert utólag nem tudunk reklamációt elfogadni. A szállítási és bontási költségek a vásárlót terhelik. A szállítást akkor lehet megkezdeni, ha az eladó az erre vonatkozó engedélyt megadta. A leütési ár nem tartalmazza az ÁFÁ-t és a vásárlói felárat.