9000 Győr Szitásdomb
Ingatlan sorszáma: 8581
1 019 042 Ft / m2
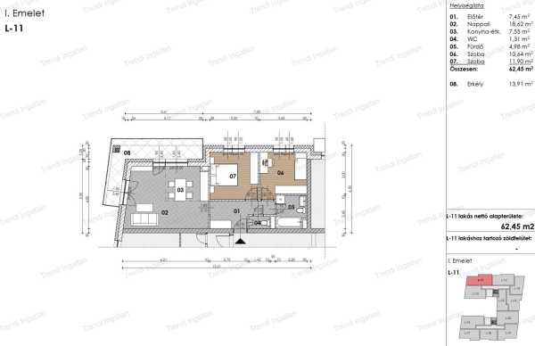
Győr belvárosától 10 perces autóútra, Szitásdomb II. Lakóparkban 2025 decemberi átadással 25 lakásos társasházban magas minőségi tartalommal épülő lakások eladók. Az 1. emeleten található 62,45 m²-es lakásban amerikai konyhás nappali, 2 szoba, fürdőszoba, WC, közlekedő, előtér kerül kialakításra. Nappaliból 13,91 m²-es erkély nyílik. A lakás fűtéskész ára: 64.199.625 Ft. Kulcsrakész befejezés kérhető. Gépkocsibeálló ára: 1.000.000 Ft + Áfa/db. A lakáshoz 2 db gépkocsibeállót kell vásárolni. MŰSZAKI JELLEMZŐK: A tárasház 30 cm-es falazóelemből, 20 cm-es homlokzati szigeteléssel épül. A műanyag, hang-és hőszigetelt, Internorm nyílászárók kívül antracit színűek. Az ár tartalmazza az alumínium elektromos redőny előkészítését és a redőny dobok beépítését. Az ingatlan hűtése/fűtése hőszivattyúval történik, egyedi hőmennyiségmérővel és hőmérséklet szabályozó termosztáttal, így nincs szükség klímára. Melegvíz előállítás is hőszivattyúval megoldott. A társasház udvaran térkövezett gépkocsibeállók kerülnek kialakításra. KÖRNYÉK JELLEMZŐI: Tárasház új kialakítású részen, a Szitásdomb II. Lakóparkban épül. A közelben boltok, pékség, babauszoda, szépségszalon, játszótér található. A környéken új és újszerű családi házak, társasházak épültek/épülnek. Győr-Belvárosa, az Ipari Park, az AUDI, az autópálya elkerülő könnyen elérhető. ELŐNYÖK: Modern, új építésű társasház, ami minőségi anyagokból épül. Új lakópark, ahol csak új építésű ingatlanok találhatóak. 2025 év végi átadás. Belváros, az Ipari Park, az autópálya elkerülő könnyen elérhető. Ha szeretné megtekinteni a helyszínt, vagy bővebb tájékoztatást szeretne kérni, várom hívását akár hétvégén is! Díjmentes, bankfüggetlen hitelügyintézéssel állunk rendelkezésére. A hirdetésben feltüntetett képek illusztrációk.
Lépjen velünk kapcsolatba!
                                                
                        Neizer Éva
                         Trendi Ingatlan
                        A partner további hirdetései
                        
Kapcsolatfelvételhez kattintson
                        A tétel adatlapján feltüntetett leírások a rendelkezésre álló információink alapján készültek. Az eszközök működőképességét, rejtett hibáit nem vizsgáltuk, azokról nincs tudomásunk. Kérjük, hogy licitálás előtt személyesen is tekintsék meg a megvásárolni kívánt tételeket, mert utólag nem tudunk reklamációt elfogadni. A szállítási és bontási költségek a vásárlót terhelik. A szállítást akkor lehet megkezdeni, ha az eladó az erre vonatkozó engedélyt megadta. A leütési ár nem tartalmazza az ÁFÁ-t és a vásárlói felárat.