8195 Királyszentistván Rózsadomb utca
Ingatlan sorszáma: 8506
1 045 000 Ft / m2
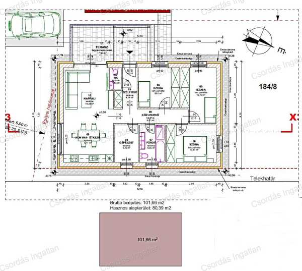
ÚJ ÉPÍTÉSŰ, ENERGIA TAKARÉKOS családi ház eladó Királyszentistvánon. A MODERN, 80,39 m2 hasznos alapterületű, bruttó 101,66 m2-es, egyszintes családi ház külön utcáról megközelíthető, 417 m²-es telken valósul meg. A 3 szoba + nappalis családi ház kulcsrakész átadása 2027. tavaszra várható. A kiváló tájolású telekről körbe tekintve POMPÁS PANORÁMÁBAN gyönyörködhetünk a bakonyi dombokra és a Balatonra egyaránt. A házba belépve egy kényelmes méretű előszobába érkezünk. Az előtérből nyílik egy külön WC kézmosóval. Jobbra egy IGAZÁN TÁGAS NAPPALI KONYHA-ÉTKEZŐVEL egy légtérben, ahonnan közvetlenül léphetünk ki a TÁGAS, 18 M2-NYI, NYUGATI FEKVÉSŰ, BURKOLT TERASZRA. A bejárattal szemben a gépészetet magában foglaló háztartási helyiség van. A bejárattól balra a három, JÓL BÚTOROZHATÓ, VILÁGOS HÁLÓSZOBA, valamint a TÁGAS FÜRDŐSZOBA található. Az ENERGIATAKARÉKOS HÁZ korszerű műszaki tartalommal és szerkezettel épül: - 30 cm-es Ytong falazat - 15 cm-es homlokzati hőszigetelés - 30 cm-es kőzetgyapot födémszigetelés - 15 cm-es hőszigetelés az aljzatban Cserép fedésű tető - Hőszivattyús padlófűtésű rendszer - Háromrétegű műanyag nyílászárók, a redőnyökhöz elektromos előkészítéssel - Hideg- és meleg burkolatok egyedi kiválasztási lehetőséggel - (meleg burkolat 8.000 Ft/m², hidegburkolat 11.000 Ft/m²) - Beltéri ajtók 70.000ft-/db áron szerepelnek az árban - tartalmazza az 5kW teljesítményű, sziget rendszerű napelem rendszert - 1 db 3,5kw hűtő-fűtő klíma Igény esetén lehetőség van garázs vagy féltető megvalósítására is, illetve a belső térkialakítás személyre szabására külön megállapodás alapján. HIBÁTLAN VÁLASZTÁS ez a RENDKÍVÜL ALACSONY REZSIVEL rendelkező, modern családi otthon. HÍVJON, hogy Öné legyen ez a remek adottságú ingatlan! A kivitelező két évtizedes építési tapasztalattal rendelkezik, így megbízható, rugalmas és magas minőségű kivitelezést biztosít. A vásárláshoz CSOK PLUSZ, FALUSI CSOK, ILLETÉKMENTESSÉG, OTTHON START HITEL igényelhető. Bankfüggetlen INGYENES hitelügyintézés, INGYENES CSOK ügyintézés. Ön csak kitalálja, mire keres megoldást és nyugodtan hátra dőlhet, a többit elintézzük.
Lépjen velünk kapcsolatba!
Csordás János
Csordás Ingatlan
A partner további hirdetései
Kapcsolatfelvételhez kattintson
A tétel adatlapján feltüntetett leírások a rendelkezésre álló információink alapján készültek. Az eszközök működőképességét, rejtett hibáit nem vizsgáltuk, azokról nincs tudomásunk. Kérjük, hogy licitálás előtt személyesen is tekintsék meg a megvásárolni kívánt tételeket, mert utólag nem tudunk reklamációt elfogadni. A szállítási és bontási költségek a vásárlót terhelik. A szállítást akkor lehet megkezdeni, ha az eladó az erre vonatkozó engedélyt megadta. A leütési ár nem tartalmazza az ÁFÁ-t és a vásárlói felárat.