2890 Tata
Ingatlan sorszáma: 8506
816 667 Ft / m2
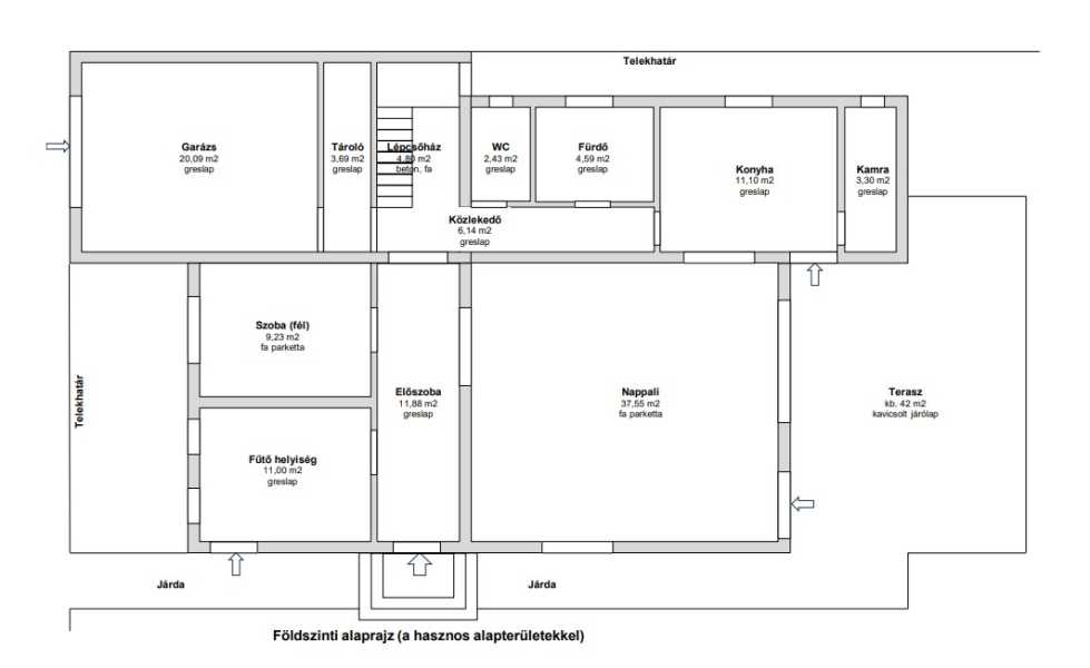
Tata egyik előkelő részén kínálunk eladásra egy tágas, többgeneráció együttélésére is alkalmas családi házat. Az eladó családi ház 1993-ban, téglából épült, így masszív szerkezetének és átgondolt kialakításának köszönhetően hosszú távon is ideális otthont biztosít. A családi ház 2015-ben egy átfogó felújításon esett át. A tető szerkezetet fóliázták és hőszigetelték, a külső vakolatot megújították és a házhoz tartozó terasz új burkolatot kapott. A családi ház belső tereiben összesen hét különálló szoba áll rendelkezésre, emellett konyha, gardrób, fürdőszoba és különálló mellékhelyiség is helyet kapott. A lakótér elrendezése praktikus, tágas, világos helyiségek jellemzik, így akár nagyobb család számára is kényelmes életvitelt biztosít. Az eladó családi ház fűtéséről gázkazán, klíma, valamint egy hangulatos cserépkályha gondoskodik, így minden évszakban kényelmes hőmérsékletet élvezhetünk. Az autó biztonságos tárolásáról egy 20 nm garázs gondoskodik, amely közvetlenül kapcsolódik az udvarhoz. A családi házhoz egy nagy méretű terasz is tartozik, amely ideális helyszínt kínál családi vagy baráti összejövetelekhez, pihenéshez. Az udvar rendezett, gondozott, és helyet kapott rajta egy különálló fa tároló, valamint egy további tárolóhelyiség is. A telken egy bevizsgált ásott kút is található, ami nemcsak értékes kiegészítő, de hosszú távon gazdaságos megoldást is jelenthet a kert fenntartásához. Ez az eladó családi ház ideális választás mindazok számára, akik Tatán, nyugodt, mégis nívós környezetben keresnek tágas, jól felszerelt otthont. A családi ház vételárába beletartozik a beépített konyha, a garázs polcrendszere és a gardróbszoba teljes berendezése. Adatbázisunkban számos eladó-kiadó ingatlan közül választhat. Személyre szabott ügyintézéssel, ügyvédi háttérrel állunk ügyfeleink rendelkezésére. 15 éves értékesítői és vezetői tapasztalat. Minden egy helyen, az ingatlan bemutatásától a kulcsátadásig! Hitelminősítés a Fő téri irodánkban a hét minden napján. Legyen közös a sikerünk!
Lépjen velünk kapcsolatba!
Kovács Noémi
Sikeres Ingatlaniroda
A partner további hirdetései
Kapcsolatfelvételhez kattintson
A tétel adatlapján feltüntetett leírások a rendelkezésre álló információink alapján készültek. Az eszközök működőképességét, rejtett hibáit nem vizsgáltuk, azokról nincs tudomásunk. Kérjük, hogy licitálás előtt személyesen is tekintsék meg a megvásárolni kívánt tételeket, mert utólag nem tudunk reklamációt elfogadni. A szállítási és bontási költségek a vásárlót terhelik. A szállítást akkor lehet megkezdeni, ha az eladó az erre vonatkozó engedélyt megadta. A leütési ár nem tartalmazza az ÁFÁ-t és a vásárlói felárat.