2060 Bicske
Ingatlan sorszáma: 8475
978 152 Ft / m2
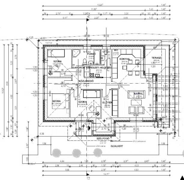
A Sikeres Ingatlaniroda kínálatában ELADÓ Bicskén, kertes lakóövezetben épülő családi ház. Az új építésű családi ház magas műszaki tartalommal, fokozott energiahatékonysággal, modern kivitelben épül. Az építkezés már elkezdődött. A korszerű technológiának köszönhetően az átadás várhatóan kb 3-4 hónap, így év végére birtokba vehető. Az épület téglából épül, alapozása betonalap és aljzat, vízszigeteléssel. A belső válaszfalak ytongból épülnek. A külső homlokzat hőszigeteléssel lesz ellátva. A homlokzati nyílászárók bukó-nyíló kialakításúak, hőszigetelő 3 rétegű üvegezéssel. A tető cseréppel lesz fedve. A ház fűtését hőszivattyús készülék fogja biztosítani, padlófűtés kialakítással. H tarifás villanyóra lesz felszerelve. Az ELADÓ családi ház megvásárlása kulcsra készen lehetséges. A ház tervezése átgondolt, nettó alapterülete 92 nm. Elrendezése praktikus, egy előszoba, egy tágas nappali, egy konyha, 3 külön nyíló hálószoba, egy tágas fürdőszoba és külön mosdó, egy gardrób és egy háztartási helyiség található. A nappali terasz kapcsolattal rendelkezik. Az ELADÓ családi házra CSOK hitel igényelhető 3 gyermek esetén is. Válassza ezt a magas műszaki színvonalú, minden igényt kielégítő, korszerű családi házat. További információért és a részletes műszaki tartalomért keressen bizalommal! Adatbázisunkban számos eladó-kiadó ingatlan közül választhat. Személyre szabott ügyintézéssel, ügyvédi háttérrel állunk ügyfeleink rendelkezésére. 15 éves értékesítői és vezetői tapasztalat. Minden egy helyen, az ingatlan bemutatásától a kulcsátadásig! Hitelminősítés a Fő téri irodánkban a hét minden napján. Legyen közös a sikerünk!
Lépjen velünk kapcsolatba!
Lukácsi Illa
Sikeres Ingatlaniroda
A partner további hirdetései
Kapcsolatfelvételhez kattintson
A tétel adatlapján feltüntetett leírások a rendelkezésre álló információink alapján készültek. Az eszközök működőképességét, rejtett hibáit nem vizsgáltuk, azokról nincs tudomásunk. Kérjük, hogy licitálás előtt személyesen is tekintsék meg a megvásárolni kívánt tételeket, mert utólag nem tudunk reklamációt elfogadni. A szállítási és bontási költségek a vásárlót terhelik. A szállítást akkor lehet megkezdeni, ha az eladó az erre vonatkozó engedélyt megadta. A leütési ár nem tartalmazza az ÁFÁ-t és a vásárlói felárat.