2800 Tatabánya Bánhida
Ingatlan sorszáma: 8469
495 300 Ft / m2
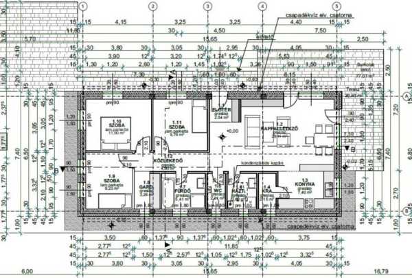
Az új építésű könnyűszerkezetes CSALÁDI HÁZAK kiváló hőszigetelési tulajdonságuknak köszönhetően, kedvezőbb fűtési költséget jelentenek, mint amire egy téglaépületnél kell számítani. Egy könnyűszerkezetes családi ház kivitelezési ideje is határozottan gyorsabb. A családi házak tervezése átgondolt, több méretben, a kisebb méretű házaktól, egyedi igény szerint nagyobb házak is készülnek. A 92 nm-es családi ház helyiségei: - 3 szoba - 1 nappali-étkező - 1 konyha - 1 fürdőszoba - 1 wc - 1 előszoba - 1 közlekedő - 1 kamra - 1 gardrób - 1 háztartási helyiség Az épület alapozása sávalap 0,4 cm szélességben és 0,90 cm mélységben. Az alap 10 cm lemezbeton, 8-as hegesztett hálós vasalással. A kavicsbetöltés gépi döngöléssel történik. Az 1 réteg talajnedvesség elleni vízszigetelt lemezbetonra 15 cm grafitos lépésálló polisztirol szigetelés kerül elhelyezésre, fólia terítéssel, melyre 6 cm-es aljzatbeton készül. A lábazat Leier zsalukőből készül, 2 sor magasságában beton kitöltéssel. Az ELADÓ ház falszerkezete 5x15 cm hőkezelt, hossztoldott ragasztott faváz szerkezet, közte 15 cm (Knauf Insulation Fact Plus 35) kőzetgyapot szigeteléssel. A belső falra párazáró fólia kerül. A falszerkezet mindkét oldala 15 mm-es osb lap borítást kap. A külső oldalra 15 cm-es polisztirol szigetelés kerül. A szigetelés 2 rétegben hungarocell ragasztóval van lehúzva, melybe üvegszövetes háló van beágyazva. A külső homlokzat lábazati része műgyantás vagy kőburkolattal készül, a külső alapvakolatra LB Knauf nemes vakolat kerül. Választható plusz költségért külső oldalra páradiffúziós fólia, illetve külsőleg az épület köré 10 cm-es válaszfal tégla, 3 cm légrés elhagyásával, melyre szintén polisztirol szigetelés kerül. A belső főfal 5x15 cm hőkezelt, hossztoldott ragasztott faváz szerkezet, közte 15 cm üveggyapot szigetelés, mindkét oldalon gipszrost borítással. A válaszfalak 5x10 cm hőkezelt, hossztoldott ragasztott faváz szerkezet, közte 10 cm üveggyapot szigetelés, mindkét oldalon gipszrost borítással. A födém 15x25 cm ragasztott fenyőgerenda, 25 cm-es gyapotszigeteléssel, párazáró gipszkarton mennyezettel. A tetőszerkezet hagyományos állószékes fedélszék első osztályú fenyőgerendákból, láng és gombamentesítő anyaggal kezelve. A gerendázatra párazáró fólia és cserépléc kerül. Azzuro betoncserép fedéssel és színes alumínium csatornával és lefolyókkal lesz lezárva. Az épület fűtése alapáron padlófűtés és radiátoros fűtés kombinációjával készül, kondenzációs melegvíztárólós gázkazánnal. Igény szerint vízteres kandalló beépítésére is van lehetőség. A nyílászárók műanyagok, a Drutex ablakgyártól, 3 rétegű üvegezéssel. Redőny előkészítés igény szerint rendelhető. A beltéri ajtók dekorfóliás vagy CPL tele ajtók, mely választható többféle színben. A fürdőszobába 210 cm magasságig csempeburkolat, a padlóra terv szerint járólap vagy laminált padló kerül. A szaniterek megállapodás szerint választhatóak. A teraszok, lépcsők burkolása fagyálló járólappal történik. A ház kivitelezési ára nem tartalmazza a telek árát, a tereprendezési munkálatokat, a közműveket. A Tatabánya belterületén lévő 700 nm-es telek vételára 29.900.000,- Ft A telek beépíthetősége 30%. Átadás garantáltan, a szerződéskötéstől számítva maximum 6 hónapon belül várható. Adatbázisunkban számos eladó-kiadó ingatlan közül választhat. Személyre szabott ügyintézéssel, ügyvédi háttérrel állunk ügyfeleink rendelkezésére. 15 éves értékesítői és vezetői tapasztalat. Minden egy helyen, az ingatlan bemutatásától a kulcsátadásig! Hitelminősítés a Fő téri irodánkban a hét minden napján. Legyen közös a sikerünk!
Lépjen velünk kapcsolatba!
Lukácsi Illa
Sikeres Ingatlaniroda
A partner további hirdetései
Kapcsolatfelvételhez kattintson
A tétel adatlapján feltüntetett leírások a rendelkezésre álló információink alapján készültek. Az eszközök működőképességét, rejtett hibáit nem vizsgáltuk, azokról nincs tudomásunk. Kérjük, hogy licitálás előtt személyesen is tekintsék meg a megvásárolni kívánt tételeket, mert utólag nem tudunk reklamációt elfogadni. A szállítási és bontási költségek a vásárlót terhelik. A szállítást akkor lehet megkezdeni, ha az eladó az erre vonatkozó engedélyt megadta. A leütési ár nem tartalmazza az ÁFÁ-t és a vásárlói felárat.