2854 Dad
Ingatlan sorszáma: 8447
657 317 Ft / m2
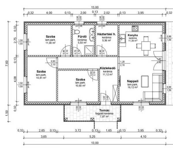
Az új építésű CSALÁDI HÁZAK tervezése átgondolt, több méretben, a kisebb méretű házaktól, egyedi igény szerint nagyobb házak is készülnek. A 743 nm-es telken épülő családi ház 30 cm-es téglából épül, alapozása sávalap 0,4 cm szélességben és 0,90 cm mélységben, talajnedvesség elleni szigeteléssel. Az aljzat hőszigetelése 10 cm EPS 100 lépésálló lemez beépítésével kerül kialakításra. A végleges Estrich aljzatbeton 6 cm vastagságban készül. A teherhordó és külső falak 30 cm-es kézi falazóelemből készülnek, belső oldalon gépi vakolattal. A válaszfalak 10 cm vastagságúak. A külső falakra 15 cm-es EPS 80 polisztirol lap hőszigetelést ragasztanak, melyre 1,5 mm-es diszperziós nemes vakolat kerül. A lábazatra 10 cm-es XPS hőszigetelés kerül, melyet választható színű műgyantás gyöngykavics lábazati vakolattal látnak el. Az épület fűtése és használati melegvíz ellátása, kondenzációs gáztüzelésű kombi gázkazán és égéstermék elvezető tartozékával, manuális termosztáttal, padlófűtéssel készül. A födémgerendák között cellulóz szigetelés készül 25 cm-es vastagságban. A tetőre beton cserép kerül, Terrán Renova alapcserép választható antracit és téglavörös színben. Horganyzott ereszcsatorna rendszer készül. A nyílászárók műanyagok, fokozottan hőszigetelt, 6 légkamrás, 3 rétegű üvegezéssel, acél betétes műanyag szerkezettel, fehér színben. Redőny előkészítés igény szerint rendelhető. A fürdőszobába 210 cm, mosdóba 160 cm magasságig csempeburkolat, a padlóra terv szerint járólap vagy laminált padló kerül. A szaniterek egyedi megállapodás szerint választhatóak. A festés színe egyénileg választható, a falakon pasztellszínű diszperziós falfesték, a fa felületeken lazúr festéssel. Az ELADÓ családi ház alapterülete 82 nm. Elrendezése praktikus, helyiségei: - 1 nappali, - 1 konyha-étkező, - 3 külön nyíló hálószoba, - 1 közlekedő, - 1 fürdőszoba - 1 háztartási helyiség. Válassza ezt a magas műszaki színvonalú, minden igényt kielégítő, korszerű családi házat. A ház kivitelezési ára nem tartalmazza a telek árát, a tereprendezési munkálatokat, a közműveket. Viszont felárral kérhető a tereprendezés, az épület körüli járda elkészítése, térburkolások, kertépítés, riasztó rendszer kiépítése, beüzemelése, sőt még konyhabútor gyártása és beszerelése is. A Dad belterületén lévő 743 nm-es telek vételára 5.500.000,- Ft A közművek az utcában megtalálhatóak. Az ELADÓ dadi belterületi telek területére vonatkozó szabályozási terv alapján Lf-1 jelű, Falusias lakóterület besorolású, melyre az építmény elhelyezés feltételei a következők: - beépítési módja: oldalhatáron álló, - a legkisebb kialakítható telek területe 700 nm, - a legnagyobb beépíthetősége 30%, - a legkisebb zöldfelület aránya 40%, - a legnagyobb épület magassága 5 méter. Átadás garantáltan, a szerződéskötéstől számítva maximum 6 hónapon belül várható. Adatbázisunkban számos eladó-kiadó ingatlan közül választhat. Személyre szabott ügyintézéssel, ügyvédi háttérrel állunk ügyfeleink rendelkezésére. 15 éves értékesítői és vezetői tapasztalat. Minden egy helyen, az ingatlan bemutatásától a kulcsátadásig! Hitelminősítés a Fő téri irodánkban a hét minden napján. Legyen közös a sikerünk!
Lépjen velünk kapcsolatba!
Lukácsi Illa
Sikeres Ingatlaniroda
A partner további hirdetései
Kapcsolatfelvételhez kattintson
A tétel adatlapján feltüntetett leírások a rendelkezésre álló információink alapján készültek. Az eszközök működőképességét, rejtett hibáit nem vizsgáltuk, azokról nincs tudomásunk. Kérjük, hogy licitálás előtt személyesen is tekintsék meg a megvásárolni kívánt tételeket, mert utólag nem tudunk reklamációt elfogadni. A szállítási és bontási költségek a vásárlót terhelik. A szállítást akkor lehet megkezdeni, ha az eladó az erre vonatkozó engedélyt megadta. A leütési ár nem tartalmazza az ÁFÁ-t és a vásárlói felárat.