2800 Tatabánya Bánhida
Ingatlan sorszáma: 8423
599 597 Ft / m2
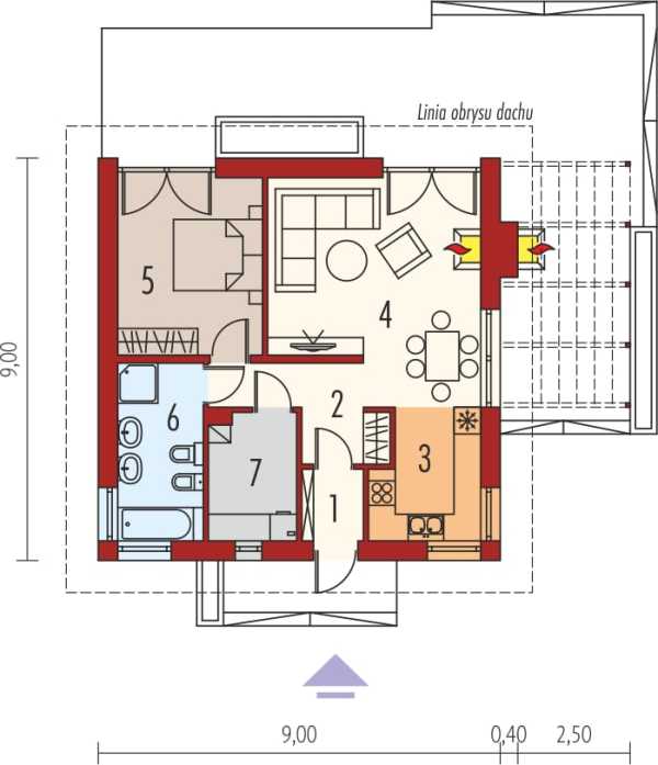
Az új építésű acélszerkezetes CSALÁDI HÁZAK magas műszaki tartalommal, fokozott energiahatékonysággal, modern kivitelben épülnek. Az ár az építész és a szakági terveket is tartalmazza! A családi házak tervezése átgondolt, több méretben, a kisméretű 39 nm-es háztól egészen a 160 nm-ig, több száz terv közül mindenki megtalálhatja a számára megfelelő álom otthont. A tervek között van egyszintes, ikerház, vagy többszintes ház, garázzsal vagy anélkül. Az épület alapozása betonalap 0,45 cm szélességben és 0,90 cm mélységben. Az aljzat beton 10 cm, hálós vasalással és 4 mm-es bitumenes talajnedvesség elleni vízszigeteléssel. A szerkezetváz rácsos tartószerkezettel készül, az elemek előszerelése műhelyben történik. Az ELADÓ házak falai 47%-al jobb hőtartásúak a 30-as Porotherm téglánál. A külső teherhordó falak 15 cm profilméretű vázkerettel készülnek. Kívülről az OSB építőlemez 20 cm-es EPS 80-as hőszigeteléssel lesz ellátva, ezen belül 15 cm-es, nagy külső zajterhelésű kőzetgyapot szigetelés található. Befelé haladva egy rétegben párazáró fólia, illetve kombinált tűz, behatolás, pára, zaj és a vizes helyiségekben nedvesség elleni gipszkarton lesz. A belső fal felület vakolás, glettelés után fehér színű záróréteget kap. Eltérő szín felár ellenében választható. A belső válaszfalak többféle profilméretű vázkialakítással készülnek, a határolt terek igényeinek megfelelő rétegszerkezeti kialakítással. A száraztechnológiás építkezésnek köszönhetően a falak nem penészesednek. A födém szintén rétegszerkezetű, a tetőszerkezetre 35x50 cm-es lécekre Bramac betoncserép kerül. Az épület fűtése padlófűtés, a fűtésrendszer szabályozása helyiségenként lehetséges, akár a távolból is külön programozható. Felár ellenében hőszivattyús fűtőrendszer, vagy napelem kiépítés választható. A melegvízellátást Ariston villanybojler biztosítja. Felár ellenében levegőztető és hűtésrendszer is választható. A bejárati ajtó fehér, tömör műanyag ajtó, 73 mm-es, 5 légkamrás profil rendszerből készül. Az ablakok is műanyagok, 6 mm-es, 5 légkamrás, 3 rétegű üvegezéssel. Redőnytok igény szerint rendelhető. A beltéri ajtók acélkeret merevítéssel, MDF lapborítással, 3D marással, vákumfóliázással készülnek. A szerződés 1 db fürdőszobát tartalmaz, melybe egy akril fürdőkád vagy egy zuhany, egy wc, egy mosdó és egy mosógép csatlakozási lehetőség kiépítése kerül. A hidegburkolatok 6.500,- Ft/nm, a meleg burkolatok 5.000,- Ft/nm áron választhatók, ennél drágább felár kifizetése mellet rendelhető. A melegburkolatokhoz színazonos szegőléc 800 Ft/fm áron választható. Egyedi méretű burkolólapok is rendelhetőek felárasan. Az ELADÓ háznak rendkívül gazdaságos a fenntartása. Megalkotásakor a tervezők a funkcionalitásra és a lakók mindennapi kényelmére összpontosítottak. Az alaprajzokat praktikus elrendezés jellemzi. A 62 nm-es családi ház helyiségei: - 1 amerikai konyhás nappali - 1 szoba - 1 fürdőszoba - 1 előszoba - 1 közlekedő - 1 háztartási helyiség A házak kivitelezési ára nem tartalmazza a telek árát, a bútorokat, és azok beszerelését, a lámpatesteket, a műszaki berendezéseket, a beltéri kilincseket, a tereprendezési munkálatokat, a közműveket. Az ELADÓ házak megvásárlása kulcsrakészen lehetséges, 15%-al olcsóbb a kulcsrakész kivitelezés az átlag téglaházhoz viszonyítva. A ház kivitelezési ára nem tartalmazza a telek árát, a tereprendezési munkálatokat, a közműveket. A Tatabánya belterületén lévő 700 nm-es telek vételára 32.000.000,- Ft Az utcában a közművek megtalálhatóak, így bekötésük megoldható. A telek beépíthetősége 30%. Átadás kötbérrel garantáltan, a szerződéskötéstől számítva 6 hónapon belül várható. Válasszon magas műszaki színvonalú, minden igényt kielégítő, korszerű Családi házat, Magyarországon, saját telkére. Adatbázisunkban számos eladó-kiadó ingatlan közül választhat. Személyre szabott ügyintézéssel, ügyvédi háttérrel állunk ügyfeleink rendelkezésére. Teljes körű díjmentes CSOK és hitelügyintézés nem csak a tőlünk vásárolt ingatlanokra. Minden egy helyen, az ingatlan bemutatásától a birtokba adásig! Hitelminősítés a Fő téri irodánkban a hét minden napján. Várjuk hívását!
Lépjen velünk kapcsolatba!
Lukácsi Illa
Sikeres Ingatlaniroda
A partner további hirdetései
Kapcsolatfelvételhez kattintson
A tétel adatlapján feltüntetett leírások a rendelkezésre álló információink alapján készültek. Az eszközök működőképességét, rejtett hibáit nem vizsgáltuk, azokról nincs tudomásunk. Kérjük, hogy licitálás előtt személyesen is tekintsék meg a megvásárolni kívánt tételeket, mert utólag nem tudunk reklamációt elfogadni. A szállítási és bontási költségek a vásárlót terhelik. A szállítást akkor lehet megkezdeni, ha az eladó az erre vonatkozó engedélyt megadta. A leütési ár nem tartalmazza az ÁFÁ-t és a vásárlói felárat.