1214 Budapest, XXI. kerület Csepel-Erdőalja Kossuth Lajos utca
Ingatlan sorszáma: 8417
1 258 621 Ft / m2
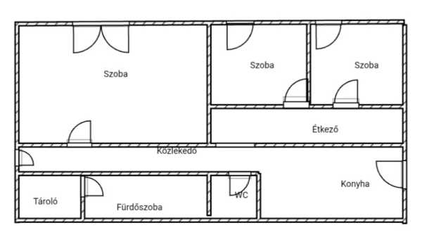
Eladó Csepel központi részén, a Kossuth Lajos utcában egy 3 szobás, panorámás, 58 m2-es, 10. emeleti lakás, per- és tehermentesen. A lakás ideális pároknak, családoknak, de ajánlom befektetőknek is. A tágas nappali az élet középpontja lehet, és a teraszról elénk táruló csendes, panorámás kilátás feltölti az embert a hétköznapokban, vagy akár hétvégén a reggeli kávé, vagy tea elfogyasztása közben. A 2 kisebb szoba a külön bejáratú magánszférát teszi lehetővé akár gyerekszobaként, akár dolgozószobaként. A lakást a konyha egyedi színvilága és a nagy ablaka teszi még hangulatosabbá. A lakás egyedisége még a fürdőszobában lévő hidromasszázs kád, ami minden korosztály számára különlegessé és pihentetővé teszi a fürdés örömét. Kiemelkedő a lakás elhelyezkedése, mert a közelben minden pár perc alatt elérhető: boltok, iskola, óvoda, bölcsőde, gyógyszertár, posta, bankok, orvosi rendelő, fitness terem, templom. A környéken kiváló a közlekedés, a H7- es HÉV 5 perc sétára található, mellyel 12 perc alatt elérhető a Boráros tér, illetve buszmegállók is pár percre vannak. A lakásban nekem a csodálatos panoráma és a hangulatos színvilág tetszik, ami egy szürke hétköznapban is örömet és nyugalmat visz az életbe. Ami még fontos számomra, az a lakás biztobsága, mivel egy rácsos ajtóval elzárt folyosón helyezkedik el. Amennyiben a legkedvezőbb hitellehetőséget szeretné igénybe venni, profi tanácsadónk egyszerre 12 bank ajánlata közül, egy ingyenes konzultáció után választja ki az Önnek legmegfelelőbbet úgy, hogy ezért akár egy lépést sem kell tenni és gyors ügyintézésünknek köszönhetően két hónapon belül már birtokba is veheti az ingatlant.
Lépjen velünk kapcsolatba!
Oláh Mariann
Büki Immobilien
A partner további hirdetései
Kapcsolatfelvételhez kattintson
A tétel adatlapján feltüntetett leírások a rendelkezésre álló információink alapján készültek. Az eszközök működőképességét, rejtett hibáit nem vizsgáltuk, azokról nincs tudomásunk. Kérjük, hogy licitálás előtt személyesen is tekintsék meg a megvásárolni kívánt tételeket, mert utólag nem tudunk reklamációt elfogadni. A szállítási és bontási költségek a vásárlót terhelik. A szállítást akkor lehet megkezdeni, ha az eladó az erre vonatkozó engedélyt megadta. A leütési ár nem tartalmazza az ÁFÁ-t és a vásárlói felárat.