2900 Komárom Belváros
Ingatlan sorszáma: 8405
769 654 Ft / m2
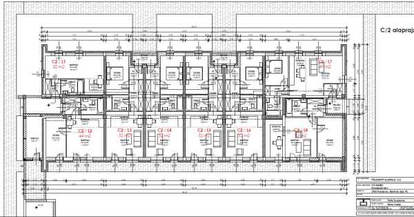
Gyermekváros Lakóparkban kínálunk megvételre lakásokat, Komárom belterületén, a Dunától délre, központ közeli, kisvárosias lakóterületen! Az épületegyüttes hatalmas, közel 23 ezer négyzetméter területen fekszik, körülötte zöldterülettel és magán kertekkel. Az épületegyüttes különböző egységekből áll, összesen 7 épületből, A, B és C jelöléssel. Az "A" jelű épület 4 egységből áll, melyben lakások, tárolók, üzletek és étterem kerül kialakításra. A B jelű lakóépület kétszintes, melyben a földszinten 4, az emeleten 5 lakás lesz. A C1 és C2 jelű épületek sorházi jelleggel, földszintes, kis privát kertes kialakítással, épületenként 8-8 lakásból állnak. Ennél az épületnél bővítési lehetőség is adott, a szélső lakásoknál. A lakóegységek itt is különböző méretűek, 32 és 53 nm közötti garzon és nappali + 1 hálószobás kialakítással. Mindegyik lakás kertkapcsolatos, a privát kertek a nappaliból nyíló teraszon keresztül közelíthetőek meg. Az épületrészeket összekötő helyiségek közös, saját tároló, illetve hulladéktároló funkciót kapnak. Ez a lakás a C2 épületben lévő 53,5 nm-es, L3-as lakás, amerikai-konyha-nappali, + szoba kialakítású, 16 nm-es terasszal, 33 nm-es előkerttel és 25 nm-es hátsó kertkapcsolattal. A lakások szerkezetkész állapotban kerülnek értékesítésre, mely a következőket tartalmazza: - bejárati ajtó - vizes blokkok kialakítása: fürdőszoba zuhanyzóval, villanybojlerrel, törölköző szárítós radiátorral, wc-vel és mosdóval, csap kiállásokkal - a lakások fűtéséről és hűtéséről hűtő-fűtő klíma fog gondoskodni - konnektorok és villanykapcsolók kiállásának kialakítása Az erkély, loggia és a földszinti lakásokhoz tartozó kertek nem képezik a vételár részét. Az épület külső homlokzata 15 cm-es EPS szigeteléssel lesz ellátva. A homlokzaton megjelennek még antracit színű acél zártszelvényből készülő korlátok, térelválasztó paravánok, melyekben homokfúvott biztonsági üveg elemeket helyeznek el. A nyílászárók hőszigetelt alumínium szerkezetűek, antracit színben. A lakáshoz megvásárolható saját parkoló, bruttó 1.200.000,-Ft.-ért, mely a lakópark magánútján található és sorompóval lesz elzárva. A teljes területen az épületek megközelítését szolgáló belső utak, járdák, parkolók, és zöldfelületek is megtervezettek. Közösségi terek lesznek kialakítva: játszótér árnyékolva, a felnőttek és gyerekek számára sportolásra alkalmas terület fitnesz eszközökkel, asztalitenisz asztallal, 50 m hosszú futófelület. A területen padok, asztalok, hulladékgyűjtők, ivókutak, és térvilágító lámpatestek kerülnek elhelyezésre. Ezen kívül a három személybejáró mellett zárható kerékpár tároló is kialakításra kerül. A zöldfelület beültetése is tervben van, melyben megtalálhatók lesznek lombhullató és örökzöld fák, cserjék, talajtakaró növények, gyepfelület, valamint függőleges zöldfalak futónövényekkel futtatva. A terület északkeleti oldalán gyümölcsfák lesznek telepítve, fűszerkerttel és pihenő padokkal. A kerítések mellett zaj és porfogóként, valamint levegőszűrőként sövényeket ültetnek. Az átadás várható időpontja 2026. II. negyedév. Bővebb tájékoztatásért kérem keressen bizalommal, részletes műszaki leírás rendelkezésemre áll, melyet személyes érdeklődés esetén bemutatok. Válassza ezt a remek lehetőséget akár beruházásként, hiszen nagy igény mutatkozik a kiadható kis lakások iránt. Természetesen családok új otthonaként is ideális választás. Adatbázisunkban számos eladó-kiadó ingatlan közül választhat. Személyre szabott ügyintézéssel, ügyvédi háttérrel állunk ügyfeleink rendelkezésére. Minden egy helyen, az ingatlan bemutatásától a birtokba adásig! Díjmentes és bankfüggetlen hitelügyintézés! Hitelminősítés a Fő téri irodánkban a hét minden napján. Várjuk hívását!
Lépjen velünk kapcsolatba!
Nyári Zoltán
Sikeres Ingatlaniroda
A partner további hirdetései
Kapcsolatfelvételhez kattintson
A tétel adatlapján feltüntetett leírások a rendelkezésre álló információink alapján készültek. Az eszközök működőképességét, rejtett hibáit nem vizsgáltuk, azokról nincs tudomásunk. Kérjük, hogy licitálás előtt személyesen is tekintsék meg a megvásárolni kívánt tételeket, mert utólag nem tudunk reklamációt elfogadni. A szállítási és bontási költségek a vásárlót terhelik. A szállítást akkor lehet megkezdeni, ha az eladó az erre vonatkozó engedélyt megadta. A leütési ár nem tartalmazza az ÁFÁ-t és a vásárlói felárat.