2800 Tatabánya
Ingatlan sorszáma: 8391
277 813 Ft / m2
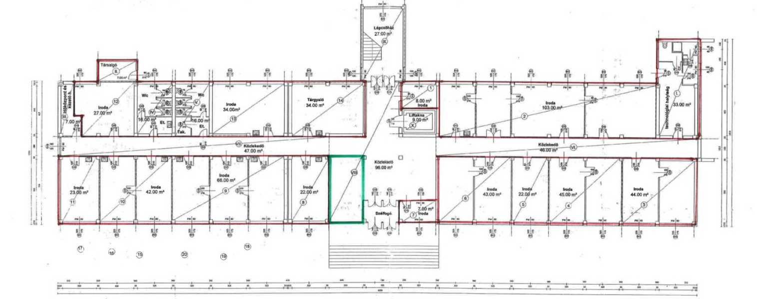
Tatabányán Óvárosban eladásra vár egy 3200 m2 alapterületű ingatlan, mely munkásszállóként üzemel. Az épület 4 emeletes, szintenként 800 m2-es, amihez hozzá tartozik egy bekerített udvar. Az épület korszerűsítése 2019-ben kezdődött azóta a víz és elektromos vezetékeket cserélték, bővítették. A földszint bal oldalon: 1 kazánház, 1 konyha található, 12 szoba ebből 7 felezett szoba, illetve 2 mosdó amikben: 4 tusoló, 5 wc és 3 piszoár található. Földszint jobb oldalon: 1 konyha található, 11 szoba, 6 felezett szoba, illetve 1 mosdó amiben: 6 tusoló és 7 wc található. 1 emeleten: 2 konyha található, 27 szoba, ebből 16 felezett szoba, 2 mosdó amiben: 6 wc, 3 piszoár és 1 tusoló található. Található még az emeleten 2 zuhanyzó amiben, 10 tusoló, 6 wc áll rendelkezésre. 2 emeleten: 2 konyha található, 26 szoba, 2 mosdó amiben: 6 wc és 3 piszoár van. Található még az emeleten 2 zuhanyzó, amiben 10 tusoló áll rendelkezésre. 3 emeleten: 1 konyha található, 25 szoba + 1 dohányzó szoba, 1 VIP mosdó ebben, 1 tusoló és 1 wc található. Található még az emeleten, 2 mosdó amiben 12 wc van, illetve az emeleten van még 2 zuhanyzó, amiben 12 tusoló áll rendelkezésre. Az épület lift és lépcsős közlekedéssel egyaránt igénybe vehető. 2023-ban 50 kw-os napelem került kiépítésre az ingatlanban mely a következő tulajdonosnak kifizetődő. Fűtését a városi távhőről kapja az ingatlan egyedi méréssel. Mindenhol energiatakarékos égők vannak, mozgásérzékelők, kamerarendszer monitorral, recepció portaszolgálattal, valamint minden szobában wifi hozzáférés biztosított. Egyes szinteken chip kártyával biztosítják a bejárást. A bekerített udvar külön bejáratú, 40-50 parkoló alakítható ki. Minden érdeklődő befektetőnek bátran ajánlom hisz minden célra alkalmas és ha valakinek van fantáziája élete befektetése lehet! Adatbázisunkban számos eladó-kiadó ingatlan közül választhat. Személyre szabott ügyintézéssel, ügyvédi háttérrel állunk ügyfeleink rendelkezésére. Teljes körű díjmentes CSOK és hitelügyintézés nem csak a tőlünk vásárolt ingatlanokra. Minden egy helyen, az ingatlan bemutatásától a birtokba adásig! Hitelminősítés a Fő téri irodánkban a hét minden napján. Várjuk hívását!
Lépjen velünk kapcsolatba!
Csercsa Elvira
Sikeres Ingatlaniroda
A partner további hirdetései
Kapcsolatfelvételhez kattintson
A tétel adatlapján feltüntetett leírások a rendelkezésre álló információink alapján készültek. Az eszközök működőképességét, rejtett hibáit nem vizsgáltuk, azokról nincs tudomásunk. Kérjük, hogy licitálás előtt személyesen is tekintsék meg a megvásárolni kívánt tételeket, mert utólag nem tudunk reklamációt elfogadni. A szállítási és bontási költségek a vásárlót terhelik. A szállítást akkor lehet megkezdeni, ha az eladó az erre vonatkozó engedélyt megadta. A leütési ár nem tartalmazza az ÁFÁ-t és a vásárlói felárat.