2371 Dabas Sári
Ingatlan sorszáma: 8269
408 333 Ft / m2
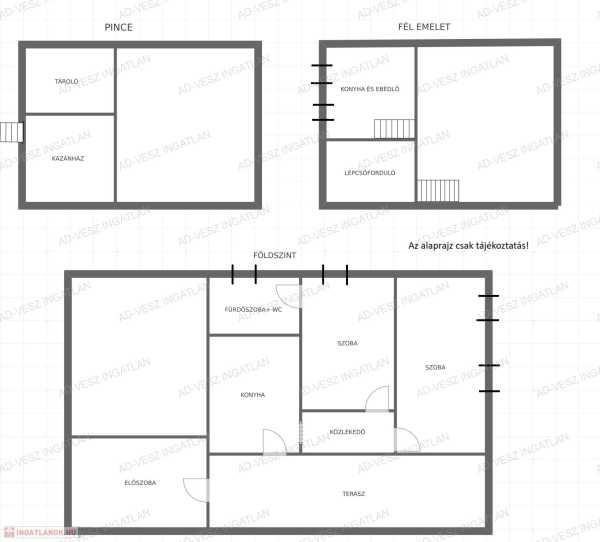
Eladó kétgenerációs családi ház! Budapesttől elérhető közelségben, jó környéken kínálunk megvételre egy 1993-ban épült, 1158m²-es telken álló, 2 külön bejáratú lakrésszel rendelkező családi házat. Alsó szint (külön bejárattal, befejezést igényel): - 2 szoba, konyha, fürdő+WC - belső befejezést igényel (burkolatok, fürdőszoba) - ideális kiadásra, vendégeknek vagy többgenerációs családnak Felső szint (szinteltolásos, felújított): - tágas előszoba - nagy konyha + étkező - nappali - 2 hálószoba + dolgozósarok - fürdő és külön WC - legfelső szinten egy különálló, nagy hálószoba - teljes felújításon esett át (nyílászárók kivételével) Műszaki adatok: - beton alap, tégla falazat, cseréptető - közművesített ingatlan - nyílászárók: hőszigetelt fa és részben műanyag (cseréjük folyamatban van) - padlózat: laminált padló és járólap - fűtés: központi gáz, klíma, konvektor és infra panel Telek adottságai: - két utcáról bejárható - nagy kocsibeálló + fedett parkoló - medence helye már kibetonozva - fúrt kút - pince kb. 30m² - gyümölcsfák, tyúkól, állattartásra is alkalmas Előnyök: - két különálló lakrész → több generációnak vagy befektetésnek is ideális - csendes, fiatalos szomszédság, barátságos közeg, jó infrastruktúra és közlekedés - a felújítás, korszerüsítés folyamatosan zajlik, így már az alsó szinten is új nyílászárók és bejárati ajtó van Ha egy tágas, sok lehetőséget kínáló ingatlant keres családja vagy befektetés céljára, akkor ne hagyja ki ezt a lehetőséget, keressen bizalommal, akár hétvégén is! Pest megye DK régión belül kis lakást beszámítunk! (Kispest, Ecser, Üllő, Vecsés) Hefler Réka Ad- Vesz Ingatlaniroda +3670-617-2607
Lépjen velünk kapcsolatba!
Hefler Réka
AD-VESZ INGATLAN
A partner további hirdetései
Kapcsolatfelvételhez kattintson
A tétel adatlapján feltüntetett leírások a rendelkezésre álló információink alapján készültek. Az eszközök működőképességét, rejtett hibáit nem vizsgáltuk, azokról nincs tudomásunk. Kérjük, hogy licitálás előtt személyesen is tekintsék meg a megvásárolni kívánt tételeket, mert utólag nem tudunk reklamációt elfogadni. A szállítási és bontási költségek a vásárlót terhelik. A szállítást akkor lehet megkezdeni, ha az eladó az erre vonatkozó engedélyt megadta. A leütési ár nem tartalmazza az ÁFÁ-t és a vásárlói felárat.