9221 Levél
Ingatlan sorszáma: 8136
1 050 000 Ft / m2
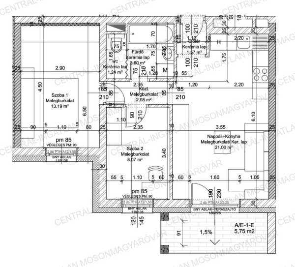
KIZÁRÓLAG A CENTRÁL-INGATLAN KÍNÁLATÁBAN! Levélen, az osztrák és a szlovák határhoz közel kínáljuk ezt a fiatal építésű társasházi lakást az 1. emeleten, nappali + 2 hálószobával és erkéllyel. A lakáshoz az udvarban 2 db, saját kocsibeálló és egy saját tároló is tartozik amit a kínálati ár tartalmaz. A levéli eladó, társasházi lakás jellemzői: -2024-ben elkészült lakás, szinte új állapotú! Délkeleti fekvésű, nappali és a hálószobák is világosak. -A lakás kiváló minőségű anyagokkal lett elkészítve. Minőségi bútorok, beépített konyhagépek. A hasznos alapterület 53.7m2 (lakótér+erkély fele), a lakótér 50.75m2, erkélyek 5.75m2. -A lakásban több helyiségben beépített bútorok találhatóak. A konyhabútor sok pakolóhelyet rejt. A hálószobában a gardrób szekrénye igény esetén maradhat. A fürdőben is a csempéhez illeszkedő bútor készült. -A konyhabútorban beépített gépek találhatóak: mosogatógép, kerámia főzőlap, légkeveréses sütő, mikrohullámú sütő található. A nappali bútor is maradhat. -Kiváló minőség és a szinte teljes bútorozottság – ide csak költözni kell. -A lakáshoz két darab, dedikált kocsibeálló tartozik az udvaron, továbbá egy 2.55m2-es saját tároló a földszinten. -A mosonmagyaróvári bevásárló központtól 3 perc autóútra lévő lakás, fiatal lakóövezetben található. A várossal kerékpárút is összeköti. Az 1-es számú vasútvonalon könnyen elérhető Bécs, Pozsony és Budapest is. -A fűtés és a meleg víz ellátás házközponti, kondenzációs gázkazánról működik. A fűtést minden helyiségben padlófűtés biztosítja. -Minden közüzemi fogyasztás egyedi méréssel, pontos, havi elszámolással működik a lakásban. Alacsony rezsivel, maximális komforttal. -A lakásban a hűtésre egy hűtő-fűtő klíma van felszerelve az extrém meleg esetére a lakás kellemesen lehűthető és fűtésre is alkalmas. -20 cm-es hőszigetelés a homlokzaton, 3 rétegű üveggel szerelt nyílászárók, motoros és kézi mozgatású, redőnyök is találhatók, minden helyiségben szúnyogháló is van. Praktikusan kialakított belső elrendezés, fürdő és wc egy helyiségben de mégis külön található. Az eladók szeretnék a lakást kb. egy évig visszabérelni piaci bérleti díjért, továbbra is vigyázva, gondoskodva a lakás jó minőségéről. Vagy lehetséges a vételárat az éves bérleti díj mértékével csökkenteni, halasztott birtokba adással. Amennyiben ez az eladó, levéli lakás, vagy bármely a kínálatunkban található társasházi lakás felkeltette érdeklődését keressen a megadott elérhetőségeken!
Lépjen velünk kapcsolatba!
Bubla Zoltán
CENTRÁL-INGATLAN MOSONMAGYARÓVÁR
A partner további hirdetései
Kapcsolatfelvételhez kattintson
A tétel adatlapján feltüntetett leírások a rendelkezésre álló információink alapján készültek. Az eszközök működőképességét, rejtett hibáit nem vizsgáltuk, azokról nincs tudomásunk. Kérjük, hogy licitálás előtt személyesen is tekintsék meg a megvásárolni kívánt tételeket, mert utólag nem tudunk reklamációt elfogadni. A szállítási és bontási költségek a vásárlót terhelik. A szállítást akkor lehet megkezdeni, ha az eladó az erre vonatkozó engedélyt megadta. A leütési ár nem tartalmazza az ÁFÁ-t és a vásárlói felárat.