8220 Balatonalmádi Városközpont
Ingatlan sorszáma: 8048
1 951 636 Ft / m2
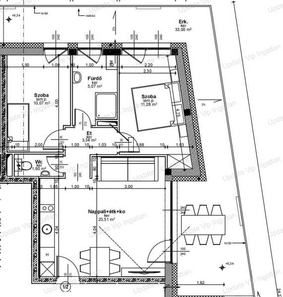
A balatoni Update VIP Ingatlaniroda kínálatából: Kivételes befektetési lehetőség: Eladó panorámás prémium apartmanok Balatonalmádiban! Balatonalmádi központjában, mindössze 50 méterre a Balaton parttól, egyedülálló helyszínen, exkluzív lakópark épül. A prémium minőségű, modern apartmanok egyedülálló panorámát és életérzést kínálnak, mindössze pár lépésre a Balaton partjától. A hirdetésben szereplő 3 szobás 55,06 m2-es apartman praktikus elrendezésű, egy tágas, 33 m2 panorámás erkéllyel rendelkezik. Elhelyezkedés: A projekt a Balaton északi partjának egyik legszebb, több mint 1 hektáros parkjában helyezkedik el. Az ingatlanok közvetlen közelében található Balatonalmádi egyik kedvelt strandja, és mindössze pár perc sétára elérhető a városközponti is. Apartmanok: 60 darab apartman épül különböző méretekben (45-77 m²) és változatos elrendezésben elérhetőek, mindegyik prémium minőségben és lenyűgöző balatoni panorámával. Kiváló befektetés: A lakások páratlan fekvése és a közelgő fejlesztések révén kiváló befektetési lehetőséget kínálnak. Nyaraló besorolás miatt 27%-os áfával rendelkeznek, vállakozásoknak tökéletes választás lehet. Parkolás és kényelmes elérhetőség: A mélygarázsban és a projekt területén kialakított parkolóhelyek segítenek a kényelmes parkolásban, melyek külön megvásárolhatók. Elektromos autó töltési lehetőség is rendelkezésre áll. Modern technológia és energiatakarékosság: A modern hőszivattyús fűtési rendszer segíten csökkenteni az energiafogyasztást. Minőség és kényelem: A lakások belső terei padlófűtéssel és fan coil hűtési rendszerrel rendelkeznek, az erkélyek és teraszok pedig prémium minőségű edzett üveggel felszereltek. A tervezés során a legújabb építészeti és technológiai megoldásokat alkalmazták, hogy a lakók maximális kényelmet élvezhessenek. A hirdetésben szereplő ár nettó ár, a bruttó eladási ár 136 321 800 Ft. Vállalkozások számára kiváló befektetési lehetőséget kínál, akár fordított áfa alkalmazásával. Az apartmanok várható átadása: 2026 nyár. A projekt ideális választás lehet azok számára, akik pihenést keresnek a Balaton partján, valamint azok számára is, akik a prémium lakások és ingatlanpiaci befektetési lehetőségek iránt érdeklődnek. Bővebb információért, megtekintés egyeztetésért, kérem keressen a megadott elérhetőségeimen! UPDATE VIP INGATLAN IRODA további szolgáltatásai: Energetikai tanúsítvány készítés, Díjmentes-bank semleges hitelügyintézés, Ügyvédi háttér, Közjegyző, Földhivatali ügyintézés, Építész, Lakberendező.
Lépjen velünk kapcsolatba!
Treszler Kata
Update Vip Ingatlan
A partner további hirdetései
Kapcsolatfelvételhez kattintson
A tétel adatlapján feltüntetett leírások a rendelkezésre álló információink alapján készültek. Az eszközök működőképességét, rejtett hibáit nem vizsgáltuk, azokról nincs tudomásunk. Kérjük, hogy licitálás előtt személyesen is tekintsék meg a megvásárolni kívánt tételeket, mert utólag nem tudunk reklamációt elfogadni. A szállítási és bontási költségek a vásárlót terhelik. A szállítást akkor lehet megkezdeni, ha az eladó az erre vonatkozó engedélyt megadta. A leütési ár nem tartalmazza az ÁFÁ-t és a vásárlói felárat.