9025 Győr Sziget
Ingatlan sorszáma: 7992
859 474 Ft / m2
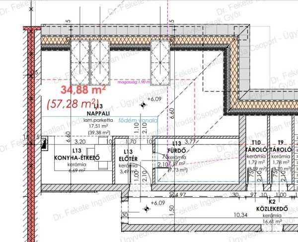
Új lakás vásárlási lehetőség Győr-Szigetben! Az Egyetemtől és a Termálfürdőtől mindössze 5-10 perc sétára található ez a központi, mégis csendes helyen elhelyezkedő új társasház. Ilyen egyedi lokációban ritkán épülnek új lakások. Bruttó lakótér: 57,28 nm / nettó lakótér: 34,88 nm, 1 szobás / tetőtéri elhelyezkedésű. Értékálló Prémium Kategóriás Ingatlan: Energetikai besorolás: A+ Fűtéskész átadás: 2026 tavasszal Modern Kényelmi Megoldások: Hőszivattyús padló és mennyezet hűtés-fűtés: Nincs szükség klímára, jelentős megtakarítás Kiváló hőérzet, egészségesebb megoldás Alacsonyabb üzemeltetési költségek Egyedi hőmennyiségmérő és termosztát lakásonként Melegvíz előállítása is hőszivattyúval történik Esztétikus épület, értékálló ingatlanok Négy oldalról bekerített épület Elektromos kapu távműködtetéssel További Extrák: Beépített redőnyök elektromos mozgatással Egy db törölközőszárítós radiátor az árban Minden lakáshoz egyéni hidegvíz- és melegvízóra, valamint villanymérő biztosítva Közüzemi hozzájárulási költségek az árban Ne hagyd ki ezt az egyedülálló lehetőséget! Költözz be új, prémium minőségű otthonodba Győr-Sziget egyik legjobb helyén, és élvezd a modern technológia és a kényelmes élet minden előnyét! Gk Beálló: 4,49 M Ft /db Tároló: 3 M Ft - 1,78 nm Keress még ma, várom hívásod! Hartmann-né Viki Tel.: +36 20 481 3369
Lépjen velünk kapcsolatba!
Hartmann-né Ildikó Viki
Dr. Fekete Ingatlan Iroda Csoport - Ügyvédházak Győr
A partner további hirdetései
Kapcsolatfelvételhez kattintson
A tétel adatlapján feltüntetett leírások a rendelkezésre álló információink alapján készültek. Az eszközök működőképességét, rejtett hibáit nem vizsgáltuk, azokról nincs tudomásunk. Kérjük, hogy licitálás előtt személyesen is tekintsék meg a megvásárolni kívánt tételeket, mert utólag nem tudunk reklamációt elfogadni. A szállítási és bontási költségek a vásárlót terhelik. A szállítást akkor lehet megkezdeni, ha az eladó az erre vonatkozó engedélyt megadta. A leütési ár nem tartalmazza az ÁFÁ-t és a vásárlói felárat.