9024 Győr Szabadhegy
Ingatlan sorszáma: 7987
859 474 Ft / m2
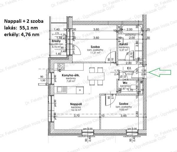
Foglald le most ezt az emeleti ingatlant magadnak! Az irodák lakócélra is hasznosíthatóak az alapító okirat szerint. 2025 novemberben 1 db parkoló AJÁNDÉK a vásárolt ingatlanhoz! Nettó fűtéskész hirdetési ár! Irodaként vásárolva, céges vásárlás esetén, a vállalkozói díj fordított ÁFÁ-s. Magánszemély esetén + 27% ÁFA a vételár! Jellemzők: - 3 szoba, 55,1 nm - 4,76 nm-es erkély - Fűtéskész állapot - Energetika: AA Miért érdemes itt és most vásárolni? - Értékálló PRÉMIUM kategóriás ingatlan - Hőszivattyús padló/mennyezet hűtés/fűtés és melegvíz előállítás - Nincs szükség klímára a hűtésnél, jelentős megtakarítás és egészségesebb hőérzet - Értékálló ingatlanok esztétikus épületben - Kiváló lokáció: Győri Ipari Park könnyen elérhető akár kerékpárral is, a város többi része is könnyen megközelíthető. A projekt 8 lakást és 14 irodát foglal magába. Extra előnyök: - Parkolás beállón: + 2,9 M Ft/db (2 parkolóhely fenntartva ehhez az ingatlanhoz) 2025 novemberben 1 db parkoló AJÁNDÉK a vásárolt ingatlanhoz! - Emeltszintű fűtéskész nettó hirdetési ár -Tároló 2,4 - 3,9 M Ft / db - Kulcsrakész átadás is kérhető Kérj időpontot személyes találkozóra, és ne hagyd ki ezt az egyedülálló lehetőséget! Kérdéseidre szívesen válaszolok. Várom hívásod! Hartmann-né Viki Tel.: +36 20 481 3369
Lépjen velünk kapcsolatba!
Hartmann-né Ildikó Viki
Dr. Fekete Ingatlan Iroda Csoport - Ügyvédházak Győr
A partner további hirdetései
Kapcsolatfelvételhez kattintson
A tétel adatlapján feltüntetett leírások a rendelkezésre álló információink alapján készültek. Az eszközök működőképességét, rejtett hibáit nem vizsgáltuk, azokról nincs tudomásunk. Kérjük, hogy licitálás előtt személyesen is tekintsék meg a megvásárolni kívánt tételeket, mert utólag nem tudunk reklamációt elfogadni. A szállítási és bontási költségek a vásárlót terhelik. A szállítást akkor lehet megkezdeni, ha az eladó az erre vonatkozó engedélyt megadta. A leütési ár nem tartalmazza az ÁFÁ-t és a vásárlói felárat.