8621 Zamárdi Üdülőtelep
Ingatlan sorszáma: 7963
2 625 000 Ft / m2
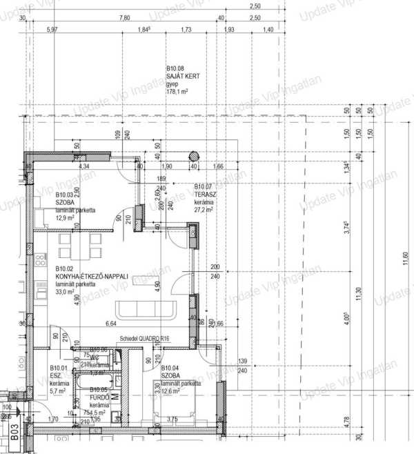
A siófoki UPDATE VIP INGATLANIRODA kínálatából: ELADÓ ZAMÁRDI NAGY STRANDI RÉSZÉN EZ AZ ÚJ ÉPÍTÉSŰ,LUXUS FÖLDSZINTI TÉGLALAKÁS! AZ ELADÓ LAKÁS JELLEMZŐI: Földszinti, kertkapcsolatos lakás Két szoba, nappali-konyha-étkező, fürdő külön wc és előszoba elosztású. A lakás észak- keleti tájolású részpanorámás terasszal A terasz fedett és lapozható üvegfüggönnyel beépített Saját 159m2 nagyságú műfüves udvar tartozik mely kerítéssel körbezárt. Kocsibeálló 3,5mft közös tároló A lakás luxus kategória. A tulajdonos remek és merész izlését tükrözi a belső. Igényes, mínőségi burkolatokkal tapétával, kiegészítőkkel konyhabútor,szaníterek a képen látható teljes bútorzattal eladó! Bosch mosógép Luxus kategória Teraszbútorral elektromos redőny A hálókban a legkényelmessebb 3 rétgű matracos franciaágyakkal! A konyha minőségi gépekkel felszerelt Gáz cirkó kazán, padlófűtéssel Hűtő-fűtő klíma A Balaton 100m-re van a társasháztól! Kíváló befektetés kiadás szempontjából is. Zamárdi kedvelt üdülőövezet. Gyönyörű 3km hosszú szabad strandjával Egyedi a lakás nincs több ilyen a piacon. Csak a ruháját kell hozni és már nyaralhat! Lakás minősítés! AZONNAL KÖLTÖZHETŐ! Az ingatlan előre egyeztetett időpontban bármikor megtekinthető. Bővebb információért, megtekintés egyeztetésért, kérem keressen a megadott elérhetőségeimen! UPDATE VIP INGATLAN IRODA további szolgáltatásai: Energetikai tanúsítvány készítés, Díjmentes-bank semleges hitelügyintézés, Ügyvédi háttér, Közjegyző, Földhivatali ügyintézés, Építész, Lakberendező. UPDATE VIP INGATLANIRODA SIÓFOK, FŐ TÉR 7 , 24 IRODÁNKBAN TELJES KÖRŰ ÜGYINTÉZÉS!
Lépjen velünk kapcsolatba!
Várdai Andrea
Update Vip Ingatlan
A partner további hirdetései
Kapcsolatfelvételhez kattintson
A tétel adatlapján feltüntetett leírások a rendelkezésre álló információink alapján készültek. Az eszközök működőképességét, rejtett hibáit nem vizsgáltuk, azokról nincs tudomásunk. Kérjük, hogy licitálás előtt személyesen is tekintsék meg a megvásárolni kívánt tételeket, mert utólag nem tudunk reklamációt elfogadni. A szállítási és bontási költségek a vásárlót terhelik. A szállítást akkor lehet megkezdeni, ha az eladó az erre vonatkozó engedélyt megadta. A leütési ár nem tartalmazza az ÁFÁ-t és a vásárlói felárat.