9700 Szombathely Belváros
Ingatlan sorszáma: 7953
1 236 000 Ft / m2
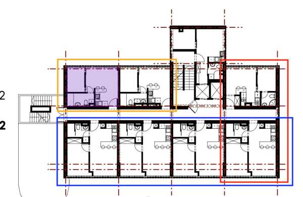
Itt vannak az ISIS exkluzív belvárosi lakásai! Ne maradjon le a legjobb lakásokról. A lakások majdnem fele már elkelt. 3%-os hitel felvehető a lakásokra, az Otthon Start program keretében. Kitűnő választás első lakást keresőknek, pároknak, egyedül költözőknek. Befektetők jó megtérüléssel, könnyedén ki tudják adni bérlőknek. Hívjon időpontegyeztetésre és megmutatom a lakásokat. Idén ősszel indul az exkluzív ISIS Home and Business Center építése Szombathely szívében, az Iseummal szemben, a Thököly és a Rákóczi utca kereszteződésében. Nyolc emeleten, magas minőségben 42 lakást alakítunk ki. Az épületben lesz skybár, fitness részleg és a földszinten üzlethelyiség is vásárolható. A lakások négyzetméterei: 25, 35, 50, 60, 70. A lakások belső kialakítására 3 féle tervet mutatok, különböző falvázlatokat, amikből kiválaszthatja a legmegfelelőbbet az Ön részére. A házban kettő darab új lift lesz. Megújult homlokzattal, új nyílászárókkal épülnek ezek a stúdió-apartmanlakások. A fűtés emeletenként külön funkcionáló hőszivattyúval történik, a lakásokban egyedi hőmennyiség szabályozó lesz, padlófűtéssel, minimális rezsiköltséggel. Minden lakásban beépített hűtő-fűtő klímát építünk be. A burkolatok választhatók. Az épület várható átadás időpontja: 2026. ősz. Jelentős engedményt biztosítunk annak, aki a vételár 10%+80%-át kifizeti. Ha érdekli a lehetőség, kérlek keressen bizalommal és hívja ezt a számot: Simon Zsolt 06209504680 ml.ingatlan1@gmail.com
Lépjen velünk kapcsolatba!
Simon Zsolt
ML Ingatlan
A partner további hirdetései
Kapcsolatfelvételhez kattintson
A tétel adatlapján feltüntetett leírások a rendelkezésre álló információink alapján készültek. Az eszközök működőképességét, rejtett hibáit nem vizsgáltuk, azokról nincs tudomásunk. Kérjük, hogy licitálás előtt személyesen is tekintsék meg a megvásárolni kívánt tételeket, mert utólag nem tudunk reklamációt elfogadni. A szállítási és bontási költségek a vásárlót terhelik. A szállítást akkor lehet megkezdeni, ha az eladó az erre vonatkozó engedélyt megadta. A leütési ár nem tartalmazza az ÁFÁ-t és a vásárlói felárat.