9700 Szombathely Belváros
Ingatlan sorszáma: 7947
954 545 Ft / m2
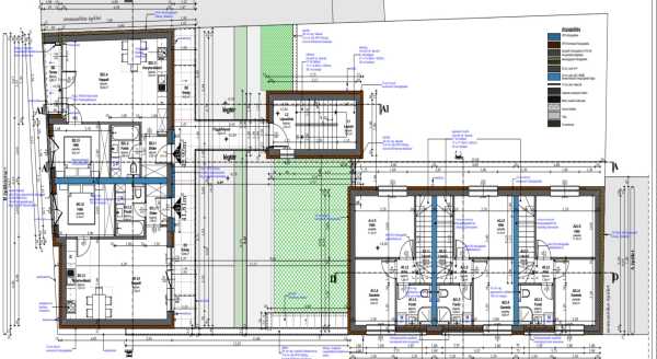
Új projekt Szombathelyen a Körmendi úton! Szombathely belvárosának határai folyamatason tolódnak ki. Új 7 lakásos, kettő épületegyüttesből álló otthonokat építünk közel a Fő térhez, amelynek lakásai garantáltan értékálló otthonok és jövedelmező befektetések lesznek a leendő tulajdonosoknak. Fedezze fel a projekt épületeinek lakásait! Befektetési és hitelezési szaktanácsadásban is segítem az Ön döntését! A környékről: Szombathely belvárosának vonzásában, a Körmendi és a Szigligeti útról közelíthető meg a lakónegyed. Az épületről: A kettő épületben Összesen 7 darab, teljesen újépítésű lakás lesz a beruházás része! Négyféle méret közül választhat: vannak 55 m2, -44 m2-es, 38 m2 -es, 34 m2-es, lakások, Némelyhez terasz tartozik, egyesekhez 40 m2-es előkert. Kitűnő választás lehet Önnek: ha otthonát alakítja ki benne vagy, ha befektetésként tekint rá. Az épület kettő szintes lesz. A földszinten 4 darab garázs is vásárolható, illetve a belső udvaron lesznek kialakítva a parkolók is. A lakások egyik fele déli, másik fele dél-nyugati tájolású. Fűtése hőszívattyúval történik, padlófűtés lesz lakásonként szabályozható egyedi mérőegységgel felszerelve. Az erkélyek mérete 4 m2-től 9 m2-ig terjednek. A műszaki tartalomról: Téglaszerkezetű falazat, külső 15 cm-es hőszigeteléssel. Fokozottan hőszigetelt, háromrétegű műanyag ablakok. A bejárati ajtó fehér színű, 5 ponton záródó biztonsági zárral. A beltéri ajtók egyedileg lesznek kiválasztva. A fűtése hőszivattyúval, a lakásokban egyedi hőmennyiség szabályozóval, padlófűtéssel. A melegvíz-ellátást eco villanybojler biztosítja. A padlóburkolatot, a csempét, a járólapot és a szanitereket a vásárló választja ki. A lakás konyhabútort nem tartalmaz. Az ingatlanhoz saját, kizárólagos használatú és tulajdonú, lezárható parkoló tartozik. Miért válassza ezt az ingatlant? Egyedi fizetési ütemezést határozunk meg az ügyféllel! A lakások 30 % önrésszel már lefoglalhatóak. A lakások műszaki átadása 2026. év végén lesz. Átadás 2027. elő negyedévben. A kivitelezés során az építő kifejezetten figyel a magas minőségre, a magas műszaki tartalomra, illetve a pontos kivitelezésre. Kapcsolat: Ha felkeltette érdeklődését az ingatlan, akkor kérem keressen, hogy a részletekről is beszélhessek Önnel. Akár csak befektetné a pénzét vagy szeretne költözni, most egy igazán értékes ingatlanhoz juthat kedvező áron! Garantáljuk, hogy a teljes lakóparki projekt megvalósulása során az Ön lakása értékálló, jó befektetés lesz. Kérem hívjon, hogy további részletekről tájékoztathassam vagy keressen szaktanácsadásért. Simon Zsolt Simon Zsolt 06209504680 ml.ingatlan1@gmail.com
Lépjen velünk kapcsolatba!
Simon Zsolt
ML Ingatlan
A partner további hirdetései
Kapcsolatfelvételhez kattintson
A tétel adatlapján feltüntetett leírások a rendelkezésre álló információink alapján készültek. Az eszközök működőképességét, rejtett hibáit nem vizsgáltuk, azokról nincs tudomásunk. Kérjük, hogy licitálás előtt személyesen is tekintsék meg a megvásárolni kívánt tételeket, mert utólag nem tudunk reklamációt elfogadni. A szállítási és bontási költségek a vásárlót terhelik. A szállítást akkor lehet megkezdeni, ha az eladó az erre vonatkozó engedélyt megadta. A leütési ár nem tartalmazza az ÁFÁ-t és a vásárlói felárat.