8314 Vonyarcvashegy
Ingatlan sorszáma: 7941
771 818 Ft / m2
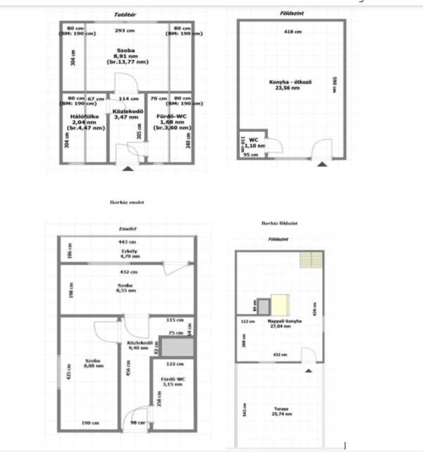
Szívvel-lélekkel teli nyaraló Vonyarcon! Az ingatlan Vonyarcvashegy községben, a Balaton északi oldala nyugati részén, a Keszthelyi-öböl partján fekszik. Az ingatlan a település központjától kb. 300 méterre egy csendes, kertvárosi jellegű, összközműves, aszfaltozott utcában található. A 1980-as években felépített ikerház két fele nem egyszerre épültek meg. A szomszéd házrész később került megépítésre. Az ingatlan összközműves, telken belül megtalálhatóak a közműórák. Elől balatoni panoráma, hátul erdő. A 628 négyzetméteres, domboldalon elhelyezkedő területen két, kétszintes családi ház is található. Óriási előnye, hogy a míg a fő ingatlant a család használhatja, addig a hátsó ház akár apartmanként is kiadható, így bevételi forrásként is kiváló lehet. De a hátsó, különálló ingatlanban a család fiatalabb, idősebb tagjai is tudják élni szabad életüket. A domboldali házakhoz cáki kővel kirakott autóbejáró vezet. Az első ház előtt gyönyörű, sással övezett terasz található, ahonnan a konyha-nappaliba lehet belépni. Épített cserépkályha is tudja adni a meleget. A szinten található egy fürdő-wc is. Az emeleten szintén van fürdő és itt két szoba található. A fő hálóból elölről, oldalról is látható a Balaton, de még az udvari panorámának is része a tó látványa. A ház mögött szintén kővel kirakott terület található, ahova a korábbi tulajdonos halpucoló pultot és grilezőt is kialakított, szintén kőből. Emögött található a hátsó, szintén kétszintes családi ház, amelynek földszintjén egy óriási, közös tér található beépített konyhával. A nagy asztalhoz akár 10-en, 12-en is le tudnak ülni. A ház hátsó része különálló, hátulról közelíthető meg. Fent két szoba és fürdő áll a családtagok vagy a vendégek rendelkezésére. A házakban gáz cirkó fűtés van, radiátoros melegítéssel. Az első ház központi részén győnyörűen megépített kerámia kandalló is van, ami az egész házat átmelegíti a hűvösebb napokon. 10 éve a ház új fa tetőszerkezetet és cserépborítást kapott, valamint külső falszigetelő réteggel lett ellátva. Melléképület 2 éve kapott hűtő-fűtő klímát, amely a tetőtéri helyiségeket látja el fűtéssel és hűtésse. A nyílászárókat műanyag hőszigetelt ablakokra cserélték. A ház tetőszerkezetét lecserélték és új Terrán tetőcserepet is kapott. A domboldalra épített ingatlanok mögött kőből kirakott bográcsozó található, ami után egy gyümölcsfákkal teli füves rész található. A kerítés szomszédságában erdő van. A házak koncepciója átgondolt. Tagoltságuk miatt lehetőség nyílik a külön, privát életre, de a nagy közös tér miatt a családi alkalmak legfontosabb helyszíne is lehet a vonyarci nyaraló. Előzetes időpont egyeztetés után tekinthető meg az ingatlan. Birtokba adás fizetés után azonnal. Fizetés: A vásárlói igények megfelelően alakítjuk ki a fizetési ütemet. Kiváló lehetőség, hogy befektesse pénzét egy Balatoni ingatlanba. Várom kedves ügyfeleim megkeresését. Simon Zsolt
Lépjen velünk kapcsolatba!
Simon Zsolt
ML Ingatlan
A partner további hirdetései
Kapcsolatfelvételhez kattintson
A tétel adatlapján feltüntetett leírások a rendelkezésre álló információink alapján készültek. Az eszközök működőképességét, rejtett hibáit nem vizsgáltuk, azokról nincs tudomásunk. Kérjük, hogy licitálás előtt személyesen is tekintsék meg a megvásárolni kívánt tételeket, mert utólag nem tudunk reklamációt elfogadni. A szállítási és bontási költségek a vásárlót terhelik. A szállítást akkor lehet megkezdeni, ha az eladó az erre vonatkozó engedélyt megadta. A leütési ár nem tartalmazza az ÁFÁ-t és a vásárlói felárat.