9700 Szombathely Parkerdő lakókert
Ingatlan sorszáma: 7931
808 511 Ft / m2
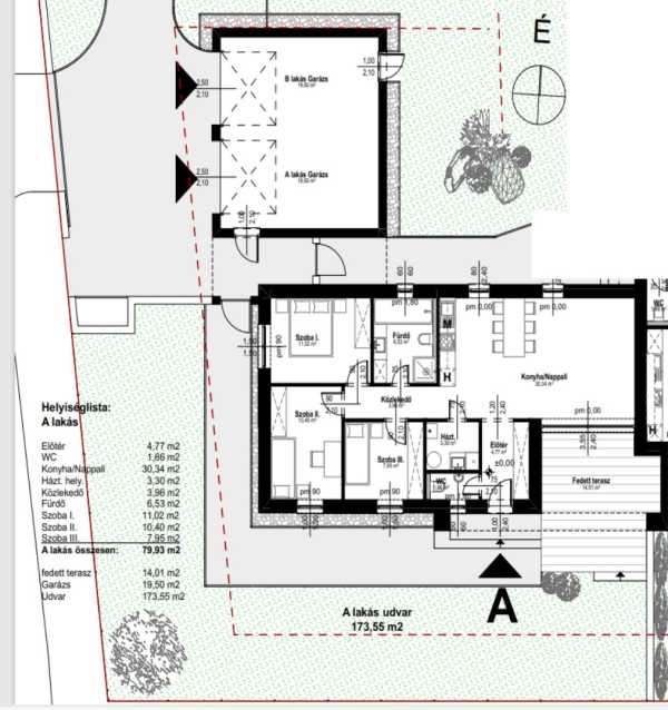
Szombathely az Oladi Platón a város legkedveltebb és folyamatosan bővülő, fejlődő családi házas lakóövezezetében családi ház 2025. év végi átadással eladó. Kedvezményes hitel, más finanszírozási lehetőségek igénybe vehetőek. Válassza ki Ön a beépítendő burkolatokat, csempe, járólap, parketta, spc, wpc... Válasszon színt az ajtónak, válasszon csapokat, zuhanyzót, térburkolatot. Modern-időtálló tervezés, alacsony resziköltség 2 illetve 3 szoba + nappali kialakítás hőszívattyú, napelem bővíthetőség Különálló garázs + kertkapcsolat CSOK + CSOK hitel + babaváró+ kedvező hitelajánlatok A, épület: 80 m2 + 14 m2 fedett terasz + 395 m1 kert + 19,5 m2 garázs B. épület : 86 m2 + 15 m2 fedett terasz + 431 m1 kert + 20 m2 garázs Előtér 4,77 m2 WC 1,66 m2 Konyha/Nappali 30,34 m2 Házt. hely. 3,30 m2 Közlekedő 3,96 m2 Fürdő 6,53 m2 Szoba I. 11,02 m2 Szoba II. 10,40 m2 Szoba III. 7,95 m2 A lakás összesen: 79,93 m2 fedett terasz 14,01 m2 Garázs 19,50 m2 Udvar 173,55 m2 A Garázs ára megrendelés esetén: 4.650.000 ft Műszaki tartalom: Falazat: a teherhordó felmenő falazatok 30 cm vastag Wienerberger Poroterm 30 N+F kerámia falazóelemekből készül (tégla) Homlokzati hőszigetelő rendszer: a homlokzati falfelületek 15 cm vtg. EPS hőszigetelő rendszert, a lábazatok 10 cm vtg. XPS lábazati hőszigetelő rendszert kapnak. Padlás hőszigetelése: 30 cm ásványgyapot szigetelőanyaggal történik Külső nyílászárók: műanyag, 3 rétegű üvegezéssel szerelt, fehér színű ablakok, 5 kamrás, fehér kilinccsel, a kiviteli terven szereplő nyitásirányokkal Meleg burkolat: laminált parketta, szegély, alátét habfólia: bruttó 4.500.- Ft/m2 árig Hideg burkolat: bruttó 5.500.- Ft/m2 árig Fűtés és meleg vízellátás, égéstermék elvezetés, csapadékvíz elvezetés: a fűtést biztosító háztartási helyiségben elhelyezett 10 Kw Gree Versati 3 hőszivattyú, padlófűtéses rendszer készül 1 db szabályozható termosztáttal. Riasztó előkészítés 5 db érzékelési ponttal. Kaputelefon előkészítés. Belső világítás előkészítés (vezetékes kiépítése helyiségenként egy db kiállással) Ügyfeleim igénybe vehetik szolgáltató cégünk teljes csomagját.: -hitelügyintézés, komplett berendezés megtervezés, bérbeadás lebonyolításáig teljes körű segítséget nyújt. Részletekért kérem hívjon. Egyeztessünk időpontot egy személyes találkozóra és a helyszínen megtekintheti az ingatlant.. Simon Zsolt 06209504680 ml.ingatlan1@gmail.com
Lépjen velünk kapcsolatba!
Simon Zsolt
ML Ingatlan
A partner további hirdetései
Kapcsolatfelvételhez kattintson
A tétel adatlapján feltüntetett leírások a rendelkezésre álló információink alapján készültek. Az eszközök működőképességét, rejtett hibáit nem vizsgáltuk, azokról nincs tudomásunk. Kérjük, hogy licitálás előtt személyesen is tekintsék meg a megvásárolni kívánt tételeket, mert utólag nem tudunk reklamációt elfogadni. A szállítási és bontási költségek a vásárlót terhelik. A szállítást akkor lehet megkezdeni, ha az eladó az erre vonatkozó engedélyt megadta. A leütési ár nem tartalmazza az ÁFÁ-t és a vásárlói felárat.