6000 Kecskemét
Ingatlan sorszáma: 7876
931 667 Ft / m2
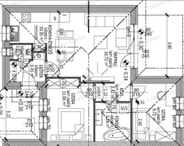
Helvécián újépítésű nappali+ 2 szobás 60 nm-es ház , választható 150-225 nm-es telken eladó. Jellemzők: - nappali+ 2 hálószoba - nappali-étkező-konyha egy légétérben - 13 nm-es terasz - választható burkolatok - választható szaniterek - cirkó fűtés - padlófűtés - klímahűtés-fűtés - extra hő és hangszigetelt 3 rétegű 6 légkamrás nyílászárók - homlokzati szigetelés 12 cm - aljzat szigetelés 15 cm - födém szigetelés 25 cm További részletekkel kapcsolatban keressen bizalommal. Tel: +3670 2699392 Ingatlant Fortunától! Legyen hozzánk szerencséje! Az ingatlan adatai megbízónktól kapott információk alapján lettek rögzítve, értük felelősséget nem tudunk vállalni!
Lépjen velünk kapcsolatba!
Fekete Anikó
Fortuna Casa Ingatlan
A partner további hirdetései
Kapcsolatfelvételhez kattintson
A tétel adatlapján feltüntetett leírások a rendelkezésre álló információink alapján készültek. Az eszközök működőképességét, rejtett hibáit nem vizsgáltuk, azokról nincs tudomásunk. Kérjük, hogy licitálás előtt személyesen is tekintsék meg a megvásárolni kívánt tételeket, mert utólag nem tudunk reklamációt elfogadni. A szállítási és bontási költségek a vásárlót terhelik. A szállítást akkor lehet megkezdeni, ha az eladó az erre vonatkozó engedélyt megadta. A leütési ár nem tartalmazza az ÁFÁ-t és a vásárlói felárat.