4400 Nyíregyháza Belváros
Ingatlan sorszáma: 7805
399 800 Ft / m2
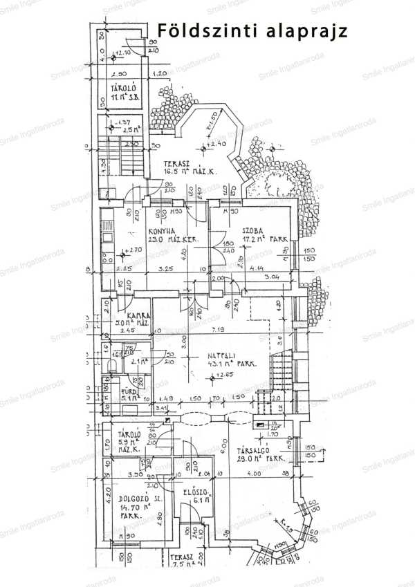
Különleges ház, különösen jó helyen... Nagy terekre, különleges ingatlanra vágyik saját fitness és kondíciónáló teremmel ? Megtalálta! Nyíregyháza tradicionális villanegyedében a főiskola közelében várja új tulajdonosát, ez a magas minőségben megépített, rengeteg extrával rendelkező, impozáns méretekkel megáldott, minden igényt kielégítő családi ház. A háromszintes (pince + földszint + emelet) , 495,36 nm nettó alapterületű családi ház 914 nm-es telken 1995-ben épült. Az ingatlan 5 szoba + nappalis, galériás, 2 fürdőszobás, családi ház háromállásos garázzsal, fűtött fitness és kondícionáló teremmel . A földszinti terasz biztosítja a kertkapcsolatot a lakóterekkel, az emeleti erkélyről pedig a ház előtti kertben gyönyörködhetünk. A pince nettó alapterülete 162,05 nm mely a háromállásos garázst és a fitness termet foglalja magában , de itt került elhelyezésre a gáz valamint a fatüzelésű kazán is. A ház földszinti nettó alapterülete 188,80 m2, Tagolása: terasz, előszoba, dolgozószoba, tároló, társalgó, fürdőszoba-wc, nappali, konyha, kamra, étkező, terasz és tároló Az emelet nettó alapterülete 144,51 m2, Tagolása: közlekedő(galéria), 4 hálószoba, erkély, háztartási helyiség , fürdőszoba, WC, A ház különlegessége a galériára vezető egyedileg gyártott faszerkezetű lépcső és a ház D-oldalát határoló nagyméretű hőszigetelt ablakok. A lakóház tégla szerkezetű főfalakkal, betonfödémmel épült, a belső teherhordó falak 30 cm vastagságúak, a válaszfalak 10 cm vastagságúak, a tető műemlék palával fedett. A nyílászárók kiváló hang- és hőszigetelésű, faszerkezetű ablakok, a szobáknál szúnyoghálóval szerelve. A beltéri ajtók és a beépített szekrények egyedileg készültek tölgyfából. A nappaliban a társalgóban és a szobákban magas kopásállóságú parketta, a többi helyiségben kerámiaburkolat került. Az egyedi tervezésű konyhabútor csúcskategóriás gépekkel felszerelt A fűtésről gázkazán gondoskodik, a hőleadás a hálószobák kivételével padlófűtéssel történik. A ház 500 nm-es udvara parkosított, dísznövényekkel beültetett, füvesített. Az öntözés fúrt kútról üzemeltetett automata öntöző rendszerrel működik. A háromállásos garázs járólappal burkolt, automata szekcionált kapuval nyitható. A házról készült fényképek, valamint az alaprajzok és a helyiségek eloszlásának részletes kimutatását a hirdetés mellékletei tartalmazzák. További információ kérésével vagy az ingatlan megtekintésével kapcsolatban, kérem forduljon hozzám bizalommal.
Lépjen velünk kapcsolatba!
Reichert Róbert
Smile Ingatlaniroda
A partner további hirdetései
Kapcsolatfelvételhez kattintson
A tétel adatlapján feltüntetett leírások a rendelkezésre álló információink alapján készültek. Az eszközök működőképességét, rejtett hibáit nem vizsgáltuk, azokról nincs tudomásunk. Kérjük, hogy licitálás előtt személyesen is tekintsék meg a megvásárolni kívánt tételeket, mert utólag nem tudunk reklamációt elfogadni. A szállítási és bontási költségek a vásárlót terhelik. A szállítást akkor lehet megkezdeni, ha az eladó az erre vonatkozó engedélyt megadta. A leütési ár nem tartalmazza az ÁFÁ-t és a vásárlói felárat.