7300 Komló Mecsekjánosi
Ingatlan sorszáma: 7796
294 000 Ft / m2
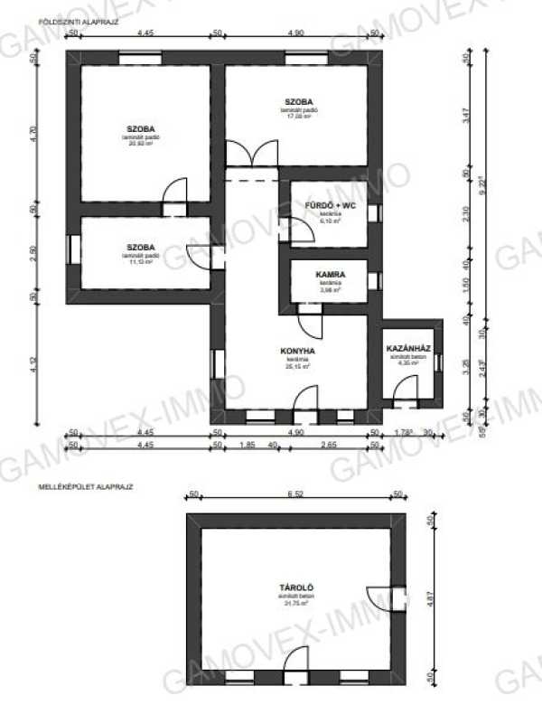
Eladó ez a 85 négyzetméteres családi ház Komló-Mecsekjánosiban. Elrendezése: konyha, nappali egy légtérben, a konyhából nyílik a kamra, egy folyosóról pedig jobbra és szemben a szobák, balra a fürdő-wc helyiség. A melegről gázzal működő központifűtés gondoskodik. Az ingatlanhoz tartozik tároló, melléképület, és füvesített udvar is. A településen van iskola, óvoda, bolt, stb. Komló és Pécs is könnyen elérhető.
Lépjen velünk kapcsolatba!
Gazda Zoltán
GAMOVEX-IMMO
A partner további hirdetései
Kapcsolatfelvételhez kattintson
A tétel adatlapján feltüntetett leírások a rendelkezésre álló információink alapján készültek. Az eszközök működőképességét, rejtett hibáit nem vizsgáltuk, azokról nincs tudomásunk. Kérjük, hogy licitálás előtt személyesen is tekintsék meg a megvásárolni kívánt tételeket, mert utólag nem tudunk reklamációt elfogadni. A szállítási és bontási költségek a vásárlót terhelik. A szállítást akkor lehet megkezdeni, ha az eladó az erre vonatkozó engedélyt megadta. A leütési ár nem tartalmazza az ÁFÁ-t és a vásárlói felárat.