3021 Lőrinci
Ingatlan sorszáma: 7753
574 627 Ft / m2
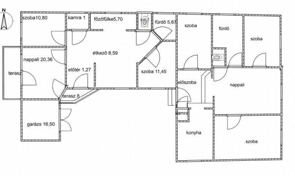
Lőrinciben, forgalmas főút mellett kínálunk megvételre egy különleges adottságokkal rendelkező ingatlant, amely két különálló családi házból áll egy 735 nm-es telken. Az ingatlan elhelyezkedése és kialakítása miatt ideális választás befektetőknek, többgenerációs családoknak, illetve azoknak, akik lakhatásukat saját vállalkozásukkal szeretnék összekapcsolni. A két ingatlan egyben és külön is megvásárolható, így befektetési szempontból is rugalmas lehetőséget kínál: akár bérbeadásra, akár üzleti célú hasznosításra is kiváló választás. Az ingatlan kiváló láthatóságú, jól megközelíthető helyen található, közvetlen kapcsolattal a négysávos 21-es főúthoz, valamint mindössze néhány perc autóútra a Hatvani csomóponttól, ami üzleti szempontból is kiemelkedő értéket képvisel. 1. épület – 67 nm-es családi ház (2004) A 2004-ben téglából épült, 67 nm-es családi ház elrendezése: 2 szoba, nappali, étkező-konyha, fürdőszoba és külön WC. Fűtése vízteres kandallóval megoldott, jelenleg gázóra nincs. Az épület fa nyílászárókkal rendelkezik, a homlokzat külső vakolatot kapott, festés és igény szerint szigetelés javasolt. Az ingatlanhoz 16,5 nm-es garázs is tartozik. Irányár: 38,5 millió Ft. 2. épület – 93 nm-es felújított családi ház A telken található egy 93 nm-es, téglából és blokkból épült családi ház, amely 2002-ben teljes körű felújításon esett át. A felújítás során megtörtént a tetőcsere, a villamoshálózat korszerűsítése, a fürdőszoba felújítása, a nyílászárók cseréje, a fűtés korszerűsítése, a hideg- és melegburkolatok cseréje, valamint a külső homlokzat szigetelése és színezése. Elrendezése: 3 szoba, nappali, konyha, előszoba, kamra, fürdőszoba és külön WC. A ház részben alápincézett, klímával felszerelt, fűtése vegyestüzelésű kazánnal és gázcirkóval is megoldható, valamint teljes közművel rendelkezik. Az ingatlan részben bútorozva kerül értékesítésre. Irányár: 54 millió Ft. A két ház közös udvari bejárattal rendelkezik, és a nagy forgalmú főút melletti elhelyezkedésnek köszönhetően vállalkozási célra is kiváló lehetőséget kínál. Az egyik épület könnyen átalakítható üzlethelyiséggé, például cukrászda, kávézó, szépségszalon, fodrászat, masszázs- vagy egészségügyi rendelő, iroda, bemutatóterem vagy webshop átvételi pont céljára. További előny, hogy az utcafront felől külön bejárat is kialakítható, így az üzlet és a lakótér teljesen elkülöníthető. Ez az ingatlan kiváló befektetési lehetőség, hiszen egyszerre kínál lakhatási, bérbeadási és üzleti hasznosítási potenciált egy jól látható, forgalmas elhelyezkedésű telken.
Lépjen velünk kapcsolatba!
Fekécs Nóra
Gyémánt Ingatlaniroda Salgótarján
A partner további hirdetései
Kapcsolatfelvételhez kattintson
A tétel adatlapján feltüntetett leírások a rendelkezésre álló információink alapján készültek. Az eszközök működőképességét, rejtett hibáit nem vizsgáltuk, azokról nincs tudomásunk. Kérjük, hogy licitálás előtt személyesen is tekintsék meg a megvásárolni kívánt tételeket, mert utólag nem tudunk reklamációt elfogadni. A szállítási és bontási költségek a vásárlót terhelik. A szállítást akkor lehet megkezdeni, ha az eladó az erre vonatkozó engedélyt megadta. A leütési ár nem tartalmazza az ÁFÁ-t és a vásárlói felárat.