3525 Miskolc Közdomb
Ingatlan sorszáma: 7750
1 503 497 Ft / m2
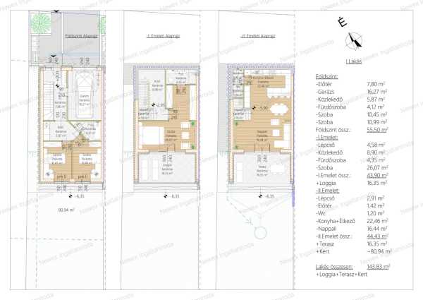
Miskolc egyik legszebb, zöldövezeti részén, a Közdombon, a Százszorszép utcában 2027-es befejezéssel egy különleges hangulatú, új építésű otthont a Százszorszépház lakópark exkluzív, mindössze négy lakásos társasházában. Az épület koncepciója a klasszikus sorházi kialakítást ötvözi majd a legmodernebb építészeti megoldásokkal, így a lakók egyszerre élvezhetik a társasházi forma előnyeit és a családi házak nyugalmát. A projekt azok számára készül, akik értékelik a tágas tereket, a privát szférát és a minőségi környezetet. A 143,83 m²-es, háromszintes lakás átgondolt elrendezésének köszönhetően ideális választás családok számára. A kényelmes utcaszinti bejárattól és garázstól indulva a privát hálószobákon át jutunk el a világos, kertkapcsolatos nappalihoz, amely a mindennapi élet központi tere lehet. A lakáshoz saját garázs és önálló kertkapcsolat tartozik, így a lakók valódi kertvárosi életérzést élvezhetnek, miközben a városi infrastruktúra is könnyen elérhető. Főbb jellemzők: - 143,83 m² nettó alapterület, - nappali + 3 hálószoba, - háromszintes kialakítás, - saját kertkapcsolat, - garázs tartozik a lakáshoz, - modern, kis lakásszámú társasház (mindössze 4 lakás), - csendes, zöldövezeti környezet. A Százszorszép utca kiváló elhelyezkedése egyszerre biztosít nyugodt, kertvárosi környezetet és gyors kapcsolatot a város központjával. A közelben megtalálhatók az iskolák, bevásárlási lehetőségek és a tömegközlekedés is. Ez az ingatlan tökéletes választás azok számára, akik egy tágas, modern és értékálló otthont keresnek Miskolc egyik legjobb adottságú részén. Az építés 2026 tavasz Irányár: 215 000 000 Ft
Lépjen velünk kapcsolatba!
Radácsi Zsuzsa
Newex Ingatlaniroda
A partner további hirdetései
Kapcsolatfelvételhez kattintson
A tétel adatlapján feltüntetett leírások a rendelkezésre álló információink alapján készültek. Az eszközök működőképességét, rejtett hibáit nem vizsgáltuk, azokról nincs tudomásunk. Kérjük, hogy licitálás előtt személyesen is tekintsék meg a megvásárolni kívánt tételeket, mert utólag nem tudunk reklamációt elfogadni. A szállítási és bontási költségek a vásárlót terhelik. A szállítást akkor lehet megkezdeni, ha az eladó az erre vonatkozó engedélyt megadta. A leütési ár nem tartalmazza az ÁFÁ-t és a vásárlói felárat.