1171 Budapest, XVII. kerület Rákoscsaba-Újtelep
Ingatlan sorszáma: 764
926 667 Ft / m2
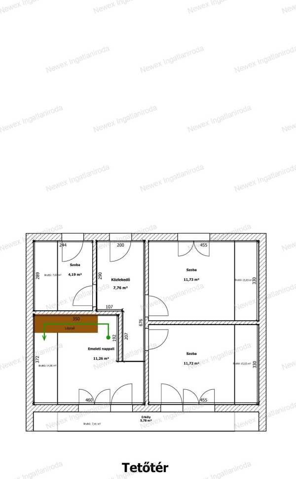
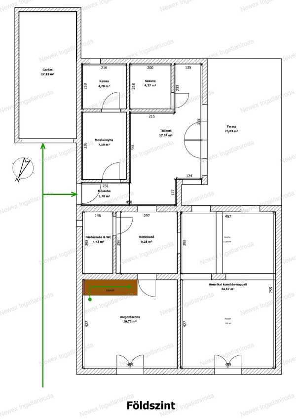
Rákoscsaba-Újtelep csendes, rendezett utcájában eladó egy kiváló adottságokkal rendelkező, folyamatosan karbantartott, téglaépítésű és szigetelt családi ház. Az ingatlan első felújítása és bővítése 1998-ban történt, azóta pedig több alkalommal korszerűsítették, legutóbb 10 éve, amikor a kazánt és a nyílászárókat is cserélték, valamint elkészült a szauna és a gyönyörű kandalló is. A ház elrendezése kimagaslóan praktikus, akár két generáció számára is kényelmes, jól elkülöníthető életteret biztosít. A földszinten amerikai konyhás nappali található, amelyet egy impozáns kandalló tesz igazán hangulatossá. Innen nyílik a teljesen zárt télikert, ahol a szauna kapott helyet, valamint a teraszra is innen jutunk ki. Ezen a szinten egy nagyméretű dolgozószoba, egy frissen felújított fürdőszoba WC-vel, közlekedő, mosókonyha és kamra is rendelkezésre áll. A dolgozószobából vezet a lépcső az emeletre, ahol második nappali, két hálószoba, valamint egy tágas, sarokkádas fürdőszoba található. A nappaliból és az egyik hálóból is közvetlen kijárat nyílik az erkélyre. Az épület korszerűsítése során hőszigetelt műanyag ablakok kerültek beépítésre redőnyökkel, a homlokzat pedig 10 cm-es szigetelést kapott. A tető szigetelt, cserépfedéssel. A fűtést modern gázkazán biztosítja lapradiátorokkal, emellett fatüzelésű kandalló és hűtő-fűtő klíma is rendelkezésre áll, így az ingatlan fenntartási költségei kifejezetten kedvezőek. A gondozott kertben hatalmas fedett terasz, valamint szalonnasütő-bográcsozó teszi lehetővé a családi és baráti összejöveteleket. A garázs egy autó számára biztosít helyet, a beállón további két gépkocsi parkolhat. A közlekedés kiváló: vonattal és busszal is könnyedén elérhető a főváros. A környék igazi kertvárosi hangulatot áraszt, biztonságos, jó szomszédsággal és jól működő infrastruktúrával. Bankfüggetlen hitelügyintézőnk segít a legkedvezőbb konstrukció kiválasztásában. Várom hívását!
Lépjen velünk kapcsolatba!
Radácsi Zsuzsa
Newex Ingatlaniroda
A partner további hirdetései
Kapcsolatfelvételhez kattintson
A tétel adatlapján feltüntetett leírások a rendelkezésre álló információink alapján készültek. Az eszközök működőképességét, rejtett hibáit nem vizsgáltuk, azokról nincs tudomásunk. Kérjük, hogy licitálás előtt személyesen is tekintsék meg a megvásárolni kívánt tételeket, mert utólag nem tudunk reklamációt elfogadni. A szállítási és bontási költségek a vásárlót terhelik. A szállítást akkor lehet megkezdeni, ha az eladó az erre vonatkozó engedélyt megadta. A leütési ár nem tartalmazza az ÁFÁ-t és a vásárlói felárat.