8380 Hévíz Belváros
Ingatlan sorszáma: 7504
314 503 Ft / m2
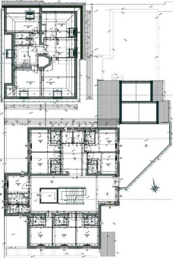
Kedves Látogató ! Kiegészítés a hirdetéshez: A hirdetett hévízi ingatlan egy többcélú épület, legfontosabb funkciója a radiológiai&kilinikai használat. Ezen felül a főépülettel szerves összeköttetésben egy kisebb épületttel is rendelkezik, amely emeletenként számos funkcióval rendelkezhet, így iroda és üzlethelyiségek bérbeadásával is. Ezen funkciók illeszkednek a főépület használatához, képesek azt támogatni és a hévízi, valamint a közvetlen környezet hiányzó szolgáltatásait is pótolni. Így folyamatos bevételt biztosíthatnak az épület tulajdonosának. Ezen szolgáltatások külön bejárattal megnyithatók a környék lakossága felé is. A fenti funkciók miatt jelen hirdetés megjelenik az Intézmény / Iroda / Üzlethelyiség aloldalakon is. A tulajdonos kész havi egyenlő törlesztésekkel is értékesíteni az ingatlant, a hirdetett, (€ -ban megadott) árnak a vevő általi törlesztéseivel. A törlesztési időszak maximális hossza 12 hónap. A részletkérdések szerződésben kerülnének rögzítésre. Eladó szolgáltató ház Eladó a gyógyvizéről híres Hévíz belterületén (a városközpont közelében), egy újszerű, tégla építésű, 2257 m2 alapterületű, a tulajdoni lapon 1893 m2 –es telken lévő ingatlan. Az épület a 2010 –es évek elején épült, a Földhivatalnál mint egészségügyi intézmény van bejelentve, korábban egészségügyi tevékenységre szóltak a hatósági engedélyei. Az ingatlan és a hozzátartozó terület folyamatosan karbantartott, állaga újszerűnek minősíthető, az utcában nincs átmenő forgalom. Fő jellemzői: - ÉNY-DK tájolás - 16 szoba (1, ill. 2 személyes szobák, összesen 30 fő befogadására), minden szobához zuhanyzó+WC tartozik - a szabványoknak megfelelően kialakított helyiségek rendelőknek és a személyzet számára - 2 lift (évente hatóság által ellenőrizve) (a főépület liftje alkalmas kerekes kórházi ágy befogadására, így egynapos sebészet is kialakítható néhány napos bent fekvéssel) - akadálymentesített - gázkazán, fan coil klíma - saját fedetlen parkoló van - az internet eléréshez szükséges kábelezés rendelkezésre áll A bruttó m2 szintenkénti eloszlása: (-2.) pince szint 183 m2 (-1.) pince szint 718 m2 (a pince szinteken radiológiai vizsgálatokhoz kialakított helyiségek) Földszint 632 m2 (1.) emelet 383 m2 (2.) emelet 234 m2 (beépített tetőtér) Tetőszint 107 m2 Összesen: 2257 m2 (A szintekről A0 -ás méretű alaprajzok vannak papír alapon. Komoly érdeklődés esetén tudunk adni 1-1 példányt a helyiségek berendezésének tervezéséhez) Az ingatlan két, egymással fedett összeköttetésben lévő épületrészből áll, a kisebb épület járóbeteg ellátási funkcióra is alkalmassá tehető és irodai funkcióra is alkalmas. A helyiségek bútorozatlanok, orvostechnológiai eszközökkel nincsenek felszerelve. Az épületegyüttest jelen állapotában a legkönnyebben idősek otthonaként és ambuláns szakrendelőként lehetne üzemeltetni. Hévíz belvárosa pár perces sétával elérhető, a nehezebben mozgó lakók mikrobusszal szállíthatók a központba és kirándulásra is. A Hévízen üzemelő vendéglők valamelyikével külön megállapodással biztosítható a meleg étel és akár a tálalás is, elegendő egy tálaló konyha kialakítása. Kiknek ajánljuk: - Befektetőknek, akik klinikai céllal kívánják üzemeltetni. A tisztán piaci alapokon üzemeltetett magán klinikákra (nincs szerződés a NEAK -kal) nem vonatkoznak a nemrég életbe lépett államosítási lépések. - Komplex szolgáltatást nyújtó befektetőknek, akik idősek gondozóházaként üzemeltetik, és a fennmaradó üres helyiségeket Hévíz térségében szolgáltatáshiány miatt szakrendelésre alakítják át. Az ingatlan 1/1 részben magyar cég tulajdonában van, per-, teher- és követelésmentes. Az ingatlan előzetes időpont egyeztetést követően a helyszínen megtekinthető. Az ingatlan iránt komolyan érdeklődőknek bővebb információkkal szívesen állok rendelkezésére, az érdeklődéseket a mail címemre írásos formában kérem megküldeni ! (korábban az ingatlan beszerzése ÁFA mentesen történt)
Lépjen velünk kapcsolatba!
Pusztai Gábor
IT-S Csoport
A partner további hirdetései
Kapcsolatfelvételhez kattintson
A tétel adatlapján feltüntetett leírások a rendelkezésre álló információink alapján készültek. Az eszközök működőképességét, rejtett hibáit nem vizsgáltuk, azokról nincs tudomásunk. Kérjük, hogy licitálás előtt személyesen is tekintsék meg a megvásárolni kívánt tételeket, mert utólag nem tudunk reklamációt elfogadni. A szállítási és bontási költségek a vásárlót terhelik. A szállítást akkor lehet megkezdeni, ha az eladó az erre vonatkozó engedélyt megadta. A leütési ár nem tartalmazza az ÁFÁ-t és a vásárlói felárat.