8943 Bocfölde
Ingatlan sorszáma: 7458
643 519 Ft / m2
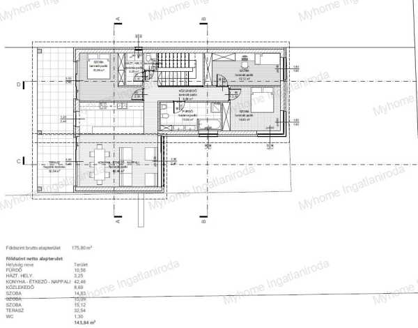
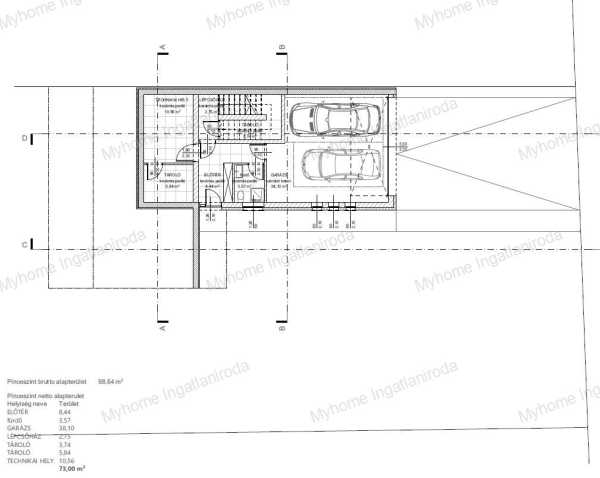
Egy új építésű ház, amelynek a kilátása már most eldönti, hogy beleszeret-e. Bocfölde egyik legszebb panorámás részén, mindössze néhány perc autóútra Zalaegerszeg városától kínálok megvételre egy új építésű, modern családi házat, amely egy 2275 m²-es telken valósul meg, nyugodt, zöld környezetben. Az ingatlan 216 m² nettó alapterületű, két szinten kialakított, átgondolt elrendezéssel. A tervezésnél a tágas terek, a természetes fény és a kényelmes családi élet volt a fő szempont. A felső lakószinten egy amerikai konyhás nappali–étkező, három hálószoba, fürdőszoba, háztartási helyiség és külön WC kap helyet. A nappaliból közvetlen kijárat nyílik a 32 m²-es panorámás teraszra, amely a ház egyik legkülönlegesebb pontja. Az alsó szinten 38 m²-es dupla garázs, előtér, fürdőszoba, két tároló és a gépészeti helyiség található. Műszaki tartalom • 30 cm Porotherm tégla falazat • 20 cm homlokzati szigetelés • háromrétegű műanyag nyílászárók • betonfödém • antracit tetőcserép • hőszivattyús fűtés padlófűtéssel Az ingatlan jelenleg kivitelezés alatt áll, így a leendő tulajdonos – megfelelő időben történő megállapodás esetén – bizonyos részletekben még alakíthatja a belső kialakítást. A telek mérete és az elhelyezkedés külön értéket képvisel: a ház panorámás környezetben, csendes utcában épül, miközben Zalaegerszeg infrastruktúrája perceken belül elérhető. Főbb adatok • telek: 2275 m² • nettó alapterület: 216 m² • szobák száma: nappali + 3 háló • 32 m² terasz • 38 m² dupla garázs • új építés, modern gépészet • panorámás elhelyezkedés Az ingatlan ideális választás lehet azok számára, akik új építésű, korszerű családi házat keresnek Zalaegerszeg közvetlen közelében, nagy telekkel és nyugodt környezetben. Részletes műszaki információkért, a kivitelezés jelenlegi állapotáról, illetve személyes bemutatásért keressen bizalommal. A hirdetésben a kivitelezés jelenlegi állapotáról készült saját fotók láthatók. A vásárlás teljes folyamatában segítséget nyújtok: bankfüggetlen hitelügyintézés, pénzügyi tanácsadás, támogatások ügyintézése és megbízható ügyvédi háttér is rendelkezésre áll. Igény esetén lakberendezési tanácsadó bevonásában is segítek, hogy az új otthon valóban az elképzelések szerint valósuljon meg. Érdeklődés és további információ esetén keressen bizalommal. Az ingatlanban otthon Myhome
Lépjen velünk kapcsolatba!
Berki Mónika
Myhome Ingatlaniroda
A partner további hirdetései
Kapcsolatfelvételhez kattintson
A tétel adatlapján feltüntetett leírások a rendelkezésre álló információink alapján készültek. Az eszközök működőképességét, rejtett hibáit nem vizsgáltuk, azokról nincs tudomásunk. Kérjük, hogy licitálás előtt személyesen is tekintsék meg a megvásárolni kívánt tételeket, mert utólag nem tudunk reklamációt elfogadni. A szállítási és bontási költségek a vásárlót terhelik. A szállítást akkor lehet megkezdeni, ha az eladó az erre vonatkozó engedélyt megadta. A leütési ár nem tartalmazza az ÁFÁ-t és a vásárlói felárat.