5556 Örménykút Külterület
Ingatlan sorszáma: 7419
99 286 Ft / m2
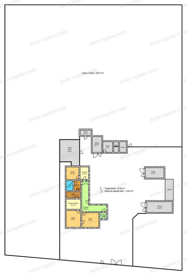
Eladásra kínálok egy hagyományos életmódra, gazdálkodásra alkalmas tanya-udvar megjelölésű ingatlant az Alföldön. Örménykút egy csendes mezőgazdasági jellegű község Békés megyében, a szarvasi járásban. Lakossága ~260 fő. A tanyához vezető út 2 nyomsávos betonozott, télen-nyáron könnyen megközelíthető. Kivételes adottsága külterületi besorolása mellett, ivóvíz, áram, és gázszolgáltatással is rendelkezik. A lakóépület a telek középső részén, a dűlő felőli bejáratnál épült, előkertes kialakítással. Vályog falazatú, cserép héjalású. Az utólag beépített tornácos rész jelenleg egy L-alakú folyosó, mely a terek közötti fedett közlekedést szolgálja. Minden helyisége betonozott, hidegburkolattal fedett, linoleummal illetve padlószőnyeggel takart. Fürdőszobában kád,-és tusoló is helyet kapott. Jelenlegi kialakításában 3 szoba, nyárikonyha, konyha-étkező, fürdőszoba-wc., kamra, és előszoba kapott helyet. Fűtése konvektorokkal megoldott, és szinte az összes helységben fatüzeléses kályha, a nyárikonyhában tea tűzhely áll rendelkezésre. A körbe ülhető kemence szája a nagyobb konyhában található, a kemence teste az utcai szoba dísze. Bútorzata, teljes berendezése, hűen tükrözi a kor szellemét, nyugalmát. Jó állapotú, beköltözhető ingatlan. A tanya területén a lakó- és gazdasági épületek elkülönült, de egymást kiegészítő egységet alkotnak. Gazdasági épületek, szárnyasoknak, lábas jószágoknak épült ólak, góré, tárolók, veteményes, mind-mind alkalmassá teszik a helyet, amennyiben önfenntartó életet szeretnél élni, növényt termeszteni, állatot tartani. Két helyrajzi számon szereplő ingatlan területe összesen 3753nm. Kerítéssel teljesen körbe határolt. Ásott,-és fúrt kút áll rendelkezésre öntözésre, locsolásra, itatásra. Többcélú befektetési potencia! Ne hagyd ki a lehetőséget! - Turisztikai hasznosítás ( szálláshely- szolgáltatás) glamping - Élelmiszer-termelés "Farn-to-Table" - Műhely, raktár - Kutya panzió, lovarda - Önfenntartás, rezsicsökkentés Amennyiben felkeltettem érdeklődését, kérem hívjon! Az ingatlan per, teher, igény mentes! Teljes bútorzattal azonnal birtokba vehető! A tanyák adásvétele a földforgalmi törvény alá tartozik, így a szerződést 30 napra ki kell függeszteni az önkormányzatnál az elővásárlási jogok miatt! Az ingatlanról, a hirdetésekben szereplő információk a megbízótól kapott adatok alapján készítettük, irodánk azokért felelősséget nem vállal!
Lépjen velünk kapcsolatba!
Turna Éva Katalin
Körös Ingatlan Iroda
A partner további hirdetései
Kapcsolatfelvételhez kattintson
A tétel adatlapján feltüntetett leírások a rendelkezésre álló információink alapján készültek. Az eszközök működőképességét, rejtett hibáit nem vizsgáltuk, azokról nincs tudomásunk. Kérjük, hogy licitálás előtt személyesen is tekintsék meg a megvásárolni kívánt tételeket, mert utólag nem tudunk reklamációt elfogadni. A szállítási és bontási költségek a vásárlót terhelik. A szállítást akkor lehet megkezdeni, ha az eladó az erre vonatkozó engedélyt megadta. A leütési ár nem tartalmazza az ÁFÁ-t és a vásárlói felárat.