5540 Szarvas
Ingatlan sorszáma: 7364
253 846 Ft / m2
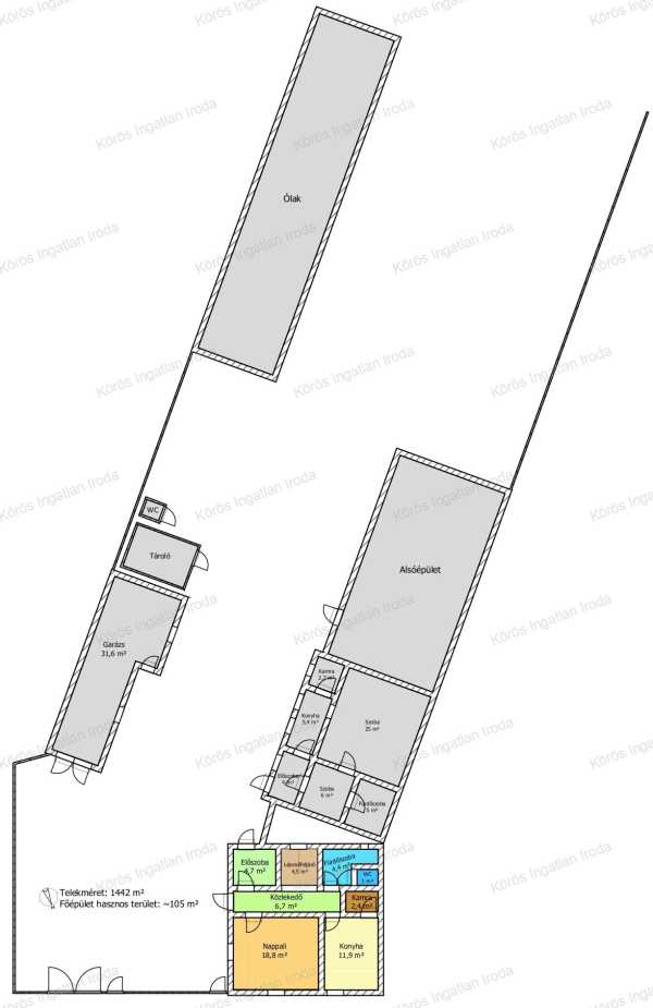
Szarvas város kiemelkedő túrisztikai célpont, a Kákafoki holtág bal partján helyezkedik el. A Magyar Királyság (történelmi nagy Magyarország) földrajzi középpontjában ennek tiszteletére emlékművet állítottak, A négyszárnyú vitorlával ellátott malmot emlékhellyé nyilvánították, mely a trianoni békeszerződésben rögzített részekre szakadásra emlékeztet. A városközpont É-Nyugati szélén eladásra kínálunk egy kétszintes + tetőtérbeépítéses lehetőséggel kialakított családi házat! Az ingatlan téglából épült, másfél méter mély beton alapzatra. Statikailag kifogástalan állapoú, stabil épületszerkezettel. Korának megfelelő állapotú, egyéni igényeknek kialakítható, korszerűsítést igénylő épület. Összközműves, duplakomfortos. Fűtése gáz ,-és vegyes cirkó. Nyílászárói dupla szárnyú egyrétegű üvegezéssel ellátott faablakok. Az emeleti két nagyobb méretű szoba erkéllyel rendelkezik. Mindkét szinten a fürdő és a wc külön helyiségben kapott helyet. Alsó szinten tusolós, a felső szinten kádas kialakítással épült a vizesblokk. A szintek közti feljáró kialakítása kényelmes, stabil vasvázon, keményfával borított lépcsőzet. A szobák halszálkás faparkettái kifogástalan állapotúak. Az ingatlan három fázissal ellátott, összesen 114 Amper álll rendelkezésre. A telek mérete 1440m2, melyen még egy külön lakrész kialakítható. Ebben az épületben is a víz, és a villany bevezetésre került. Az épület hátsó része, mely alatt pince van, elbontandó. A nagykapuval szemben álló garázs téglából épült, egy autó kényelmesen elfér benne. A lábszomszédig nyúló lábas jószág tartására alkalmas épület szintén téglából épült, betonozott aljzattal, kifutóval kialakítva. Összegezve az ingatlant: jó helyen, könnyen megközelíthető aszfaltozott út mellett elhelyezkedő, egyéni ízlésnek, biztonságnak megfelelő, jól alakítható! Az ára: 33 000 000FT Per,-teher,-igény mentes! Szarvas város a Hármas-Körös Kákafoki-holtága, továbbá a Mini Magyarország Makettpark, az Arborétum, a Szarvasi Vizi Színház, és még számos látnivaló fogadja az idelátogató turistákat. Két felsőfokú intézmény üzemel városunkban, Gál Ferenc Egyetem Pedagógiai Kar, és a Szent István Campus (MATE). Budapest-Kecskemét-Gyula vonalán, a 44-es főútról, vagy az M44-es autóútról közvetlen lehajtóval rendelkezik. Az ingatlanról, a hirdetésekben szereplő információk a megbízótól kapott adatok alapján készítettük, irodánk azokért felelősséget nem vállal!.
Lépjen velünk kapcsolatba!
Turna Éva Katalin
Körös Ingatlan Iroda
A partner további hirdetései
Kapcsolatfelvételhez kattintson
A tétel adatlapján feltüntetett leírások a rendelkezésre álló információink alapján készültek. Az eszközök működőképességét, rejtett hibáit nem vizsgáltuk, azokról nincs tudomásunk. Kérjük, hogy licitálás előtt személyesen is tekintsék meg a megvásárolni kívánt tételeket, mert utólag nem tudunk reklamációt elfogadni. A szállítási és bontási költségek a vásárlót terhelik. A szállítást akkor lehet megkezdeni, ha az eladó az erre vonatkozó engedélyt megadta. A leütési ár nem tartalmazza az ÁFÁ-t és a vásárlói felárat.