3770 Sajószentpéter Belváros
Ingatlan sorszáma: 7313
303 191 Ft / m2
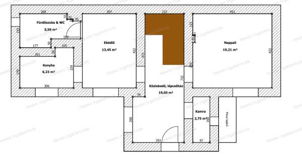
Eladó Sajószentpéter Belvárosában egy 94 m² alapterületű, tégla építésű családi ház, amely 1 221 m²-es telken helyezkedik el. Az ingatlan felújítandó állapotban van, így új tulajdonosa saját elképzelései szerint újíthatja fel és alakíthatja ki a belső tereket. A házban három különálló szoba található, amelyek jól alakítható életteret biztosítanak család számára. A helyiségek elrendezése praktikus, a nagy telekméret pedig lehetőséget ad kert kialakítására, bővítésre vagy akár további fejlesztésre is. A telek délnyugati tájolású, ennek köszönhetően a ház világos, napfényes. A környezet csendes, ugyanakkor a belvárosi elhelyezkedés miatt a boltok, iskola, óvoda és egyéb szolgáltatások rövid időn belül elérhetők. A fűtésről cirkó rendszer gondoskodik. Az ingatlan összkomfortos, minden közmű rendelkezésre áll. A parkolás garázsban megoldott, ami a központi elhelyezkedés mellett külön előnyt jelent. Az elérhető irányár 28 500 000 Ft, ami figyelembe véve a telket és a ház adottságait, kiváló befektetési lehetőséget kínál. Ne hagyja ki ezt az alkalmat, hogy saját otthona tervezésébe kezdjen! „Az ingatlan energetikai besorolásának meghatározása jelenleg folyamatban van.
Lépjen velünk kapcsolatba!
Kozák Csaba
Newex Ingatlaniroda
A partner további hirdetései
Kapcsolatfelvételhez kattintson
A tétel adatlapján feltüntetett leírások a rendelkezésre álló információink alapján készültek. Az eszközök működőképességét, rejtett hibáit nem vizsgáltuk, azokról nincs tudomásunk. Kérjük, hogy licitálás előtt személyesen is tekintsék meg a megvásárolni kívánt tételeket, mert utólag nem tudunk reklamációt elfogadni. A szállítási és bontási költségek a vásárlót terhelik. A szállítást akkor lehet megkezdeni, ha az eladó az erre vonatkozó engedélyt megadta. A leütési ár nem tartalmazza az ÁFÁ-t és a vásárlói felárat.