6728 Szeged Béketelep Vinkler László út
Ingatlan sorszáma: 7242
1 131 313 Ft / m2
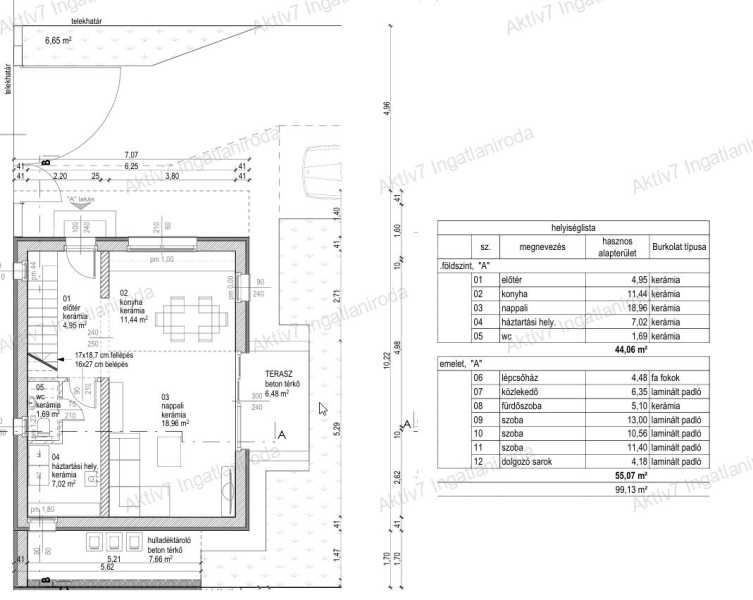
Legyen a szomszédom! – Az utolsó elérhető ház ebben a projektben a Liliom Lakópark főutcáján 13 éve élek a családommal a Liliom Lakóparkban. Nem térképről és nem prospektusból ismerem a környéket – hanem a mindennapokból. Ha szeretné, szívesen elmondom, milyen itt élni. Szegeden, a Liliom Lakóparkban, a Vinkler László utcában kínálom megvételre ezt az új építésű, önálló házat, amelynek ikerpárja már elkelt. Főbb jellemzők: - 315 m² saját használatú telekrész (a teljes telek 676 m²) - 99,13 m² hasznos alapterület - nappali + 3 hálószoba - fürdőszoba az emeleten, - külön WC kézmosóval a földszinten - nincs közös fal a szomszéddal - tetőterasz vagy nagyobb emeleti szoba kialakításának lehetősége - buszmegálló közvetlenül a ház előtt Műszaki tartalom – röviden: - - kulcsrakész kivitelezés - tégla falazat, korszerű hőszigeteléssel - alacsony rezsi a modern hőszivattyús fűtési rendszernek köszönhetően. - burkolatok-, ajtók-, szaniterek választhatók, igény szerint módosíthatók A négy egymás melletti telken összesen 8 új ház épül, ezek közül már csak a hirdetéseimben szereplő ingatlanok eladóak! A közelben épülő BYD szegedi autógyár miatt a környék nemcsak otthonként, hanem hosszabb távú befektetésként is értelmezhető. Ha kérdése van, vagy személyesen is megnézné a helyszínt, hívjon bizalommal.
Lépjen velünk kapcsolatba!
Bálint Krisztián
Aktív7 Ingatlaniroda
A partner további hirdetései
Kapcsolatfelvételhez kattintson
A tétel adatlapján feltüntetett leírások a rendelkezésre álló információink alapján készültek. Az eszközök működőképességét, rejtett hibáit nem vizsgáltuk, azokról nincs tudomásunk. Kérjük, hogy licitálás előtt személyesen is tekintsék meg a megvásárolni kívánt tételeket, mert utólag nem tudunk reklamációt elfogadni. A szállítási és bontási költségek a vásárlót terhelik. A szállítást akkor lehet megkezdeni, ha az eladó az erre vonatkozó engedélyt megadta. A leütési ár nem tartalmazza az ÁFÁ-t és a vásárlói felárat.