8855 Belezna
Ingatlan sorszáma: 7234
255 000 Ft / m2
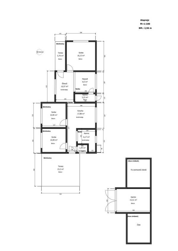
IGÉNYESEN FELÚJÍTOTT tágas családi ház nagy terasszal, GARÁZZSAL, zöld panorámával – már csak arra vár, hogy a saját ízlésedre formáld! Képzeld el, ahogy egy meghitt téli estén előkerül a doboz a karácsonyfadíszekkel – a fa már áll, tökéletes formájú, stabil és erős, csak arra vár, hogy saját ízlésed szerint ragyogóvá varázsold. Pont ilyen ez a felújított, szinte kész otthon is: a nehéz munkák elvégezve, a szerkezet megújult, a gépészet új, mint egy makulátlanul fenyő, már csak a színek, formák és részletek – a festés, a radiátorok, a belső stílus – kiválasztása maradt hátra. Itt az idő, hogy álmaid otthonát a saját kezed nyomával tedd teljessé – úgy, ahogy a díszekkel megtöltött karácsonyfa is csak akkor lesz igazán varázslatos, ha a Te lelked is benne van. Lokáció: Belezna, Zala vármegye Alapterület: 86 nm lakótér + 23,3 nm és 5,79 nm-es terasz + 15 nm garázs + melléképület Szobák száma: 4 (az elrendezés és a helyiségek funkciói még igény szerint alakíthatók) Fűtés: Gázkazánról és szilárd tüzelésű kazánról is üzemelő központi fűtés, melynek csövezése a padozatban helyezkedik el. Műszaki adatok: - beton sávalap - tégla falazat - fagerendás, illetve vasbeton födémszerkezet, betoncserép fedés - összközműves: víz, áram, gáz és csatorna a házba bekötve - műanyag szerkezetű kétrétegű hőszigetelő üvegezésű külső nyílászárók. Felújítás 2022-2023-ban: bővítés: 2 szoba, DNY-i fedett első terasz és egy 23,3 nm-es hátsó, keleti tájolású terasz teljes épületen új tetőszerkezet új betoncserép fedéssel új gépészet, új központi fűtés szerelés vízlágyítónak csatlakozás kialakítva új villamos szerelés (réz áramhálózat) gipszkarton álmennyezet új hideg és melegburkolat (a fürdőszobai csempe egy álom, a fénykép sajnos ezt nem adja vissza:)) belső falak vakolása – glettelése. Ami még hátravan: szaniterezés - szerelvényezés, villamos szerelvényezés, kp. fűtés összekötései, radiátorok, belső festés befejezése, teraszok és a lábazat burkolatai, homlokzat festése. A lakóházhoz tartozik egy 15 nm-es különálló garázs, valamint egy fa szerkezetű tároló és ólak állattartáshoz. Belezna község közvetlen központjában lévő lakóház sík, 3005 nm-es telekterületen található, mely kiváló helyszín gazdálkodáshoz, kertészkedéshez, vagy akár egy medence elhelyezésével kerti party megrendezéséhez. Aszfaltos útról közvetlenül megközelíthető, buszmegálló kb. 150 méterre található. Belezna csendes, nyugodt település Zala vármegye délkeleti sarkában, a horvát határ közelében. Határa nyugatról a Principális-csatorna, majd a Mura, amely 1 kilométerrel lejjebb a Drávába folyik. Nagykanizsa: 21 km Horvátország: 30 km Balaton: 60 km
Lépjen velünk kapcsolatba!
dr. Pohánka Ágnes
The Happy Home
A partner további hirdetései
Kapcsolatfelvételhez kattintson
A tétel adatlapján feltüntetett leírások a rendelkezésre álló információink alapján készültek. Az eszközök működőképességét, rejtett hibáit nem vizsgáltuk, azokról nincs tudomásunk. Kérjük, hogy licitálás előtt személyesen is tekintsék meg a megvásárolni kívánt tételeket, mert utólag nem tudunk reklamációt elfogadni. A szállítási és bontási költségek a vásárlót terhelik. A szállítást akkor lehet megkezdeni, ha az eladó az erre vonatkozó engedélyt megadta. A leütési ár nem tartalmazza az ÁFÁ-t és a vásárlói felárat.