6065 Lakitelek
Ingatlan sorszáma: 7157
721 687 Ft / m2
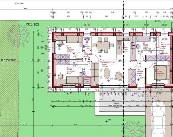
Lakitelek, új építésű környezetben, 892m2-es telken (446m2 házanként) most épülő, 82,5m2 (x2) iker családi ház eladó. Nagyon jó alaprajzi elrendezésű, 3szoba +nappali-konyha-étkező, 2 fűrdő, modern - energiatakarékos. A telek bekerített, összközműves 380V_3x25A, az épület tégla+15cm szigetelés, födém 30cm szigetelés, melegvíz-hűtés- fűtés hőszivattyú -padlófűtés, külső nyílászárók műanyag 3rétegű (6lk.) üvegezés, külső szín dió -belső fehér. Május végére szerkezetkész, lehet választani burkolatokat, szanitereket - színt, fizetési ütemezés személyre szabott, kulcsrakész átadás várható időpontja 2025. évvége. Ára lakóegységenként:59,9 Millió Ft; (első ütem, 2 lakóegység) Érd:0630/9594-299; Amennyiben felkeltettem érdeklődését, hívjon kérem. Az ingatlan adatai megbízónktól kapott információk alapján lettek rögzítve, értük felelősséget nem tudunk vállalni! További kínálatunkat tekintse meg az ablakingatlan weboldalán. Irodánk szolgáltatásai: - energetikai tanúsítvány készítés, - Teljes körű ügyintézés ingatlanok adás-vételéhez, - Kedvezményes ügyvédi költség, - ingyenes hitel ügyintézés és biztosítási tanácsadás. Amennyiben az ingatlan megvásárlásához el szeretné adni jelenleg meglévő ingatlanát, ennek lebonyolításában is állunk rendelkezésére.
Lépjen velünk kapcsolatba!
Szatmári Tünde
Ablak Ingatlanközvetítő
A partner további hirdetései
Kapcsolatfelvételhez kattintson
A tétel adatlapján feltüntetett leírások a rendelkezésre álló információink alapján készültek. Az eszközök működőképességét, rejtett hibáit nem vizsgáltuk, azokról nincs tudomásunk. Kérjük, hogy licitálás előtt személyesen is tekintsék meg a megvásárolni kívánt tételeket, mert utólag nem tudunk reklamációt elfogadni. A szállítási és bontási költségek a vásárlót terhelik. A szállítást akkor lehet megkezdeni, ha az eladó az erre vonatkozó engedélyt megadta. A leütési ár nem tartalmazza az ÁFÁ-t és a vásárlói felárat.