6000 Kecskemét Belváros Gyenes M tét
Ingatlan sorszáma: 7156
685 542 Ft / m2
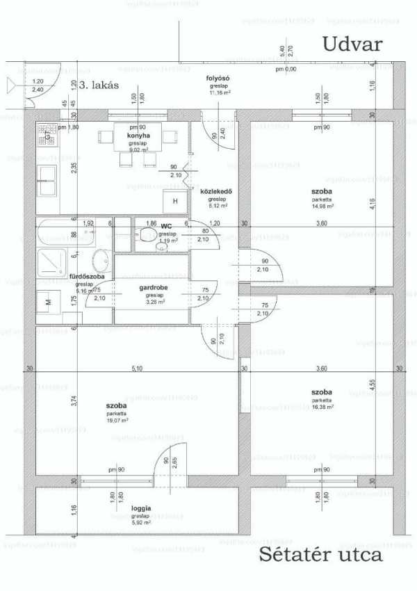
Kecskemét belvárosában zöldövezetben, szigetelt társasházban, II. emeleti, 3 szobás, erkélyes felújítandó társasházi lakás eladó. (a lakás 11 m² zárható függő folyosóról nyílik) A lakás nagyon tágas és világos, 3 különnyíló szoba, - konyha, közlekedő, - fürdőszoba, - gardrób, erkély. A fűtése gázkazános -radiátoros hőleadás, - a lakás korszerűsítést igényel (van egy terv, esetleges átalakításhoz). Irányár:56,9M; Érd:0630/9594-299; Ha felkeltettem érdeklődését, kérem hívjon! Az ingatlan adatai megbízónktól kapott információk alapján lettek rögzítve, értük felelősséget nem tudunk vállalni! További kínálatunkat tekintse meg az ablakingatlan weboldalán. Irodánk szolgáltatásai: - energetikai tanúsítvány készítés, - Teljes körű ügyintézés ingatlanok adás-vételéhez, - Kedvezményes ügyvédi költség, - ingyenes hitel ügyintézés és biztosítási tanácsadás. Amennyiben az ingatlan megvásárlásához el szeretné adni jelenleg meglévő ingatlanát, ennek lebonyolításában is állunk rendelkezésére.
Lépjen velünk kapcsolatba!
Szatmári Tünde
Ablak Ingatlanközvetítő
A partner további hirdetései
Kapcsolatfelvételhez kattintson
A tétel adatlapján feltüntetett leírások a rendelkezésre álló információink alapján készültek. Az eszközök működőképességét, rejtett hibáit nem vizsgáltuk, azokról nincs tudomásunk. Kérjük, hogy licitálás előtt személyesen is tekintsék meg a megvásárolni kívánt tételeket, mert utólag nem tudunk reklamációt elfogadni. A szállítási és bontási költségek a vásárlót terhelik. A szállítást akkor lehet megkezdeni, ha az eladó az erre vonatkozó engedélyt megadta. A leütési ár nem tartalmazza az ÁFÁ-t és a vásárlói felárat.