7626 Pécs Belváros
Ingatlan sorszáma: 7116
1 144 595 Ft / m2
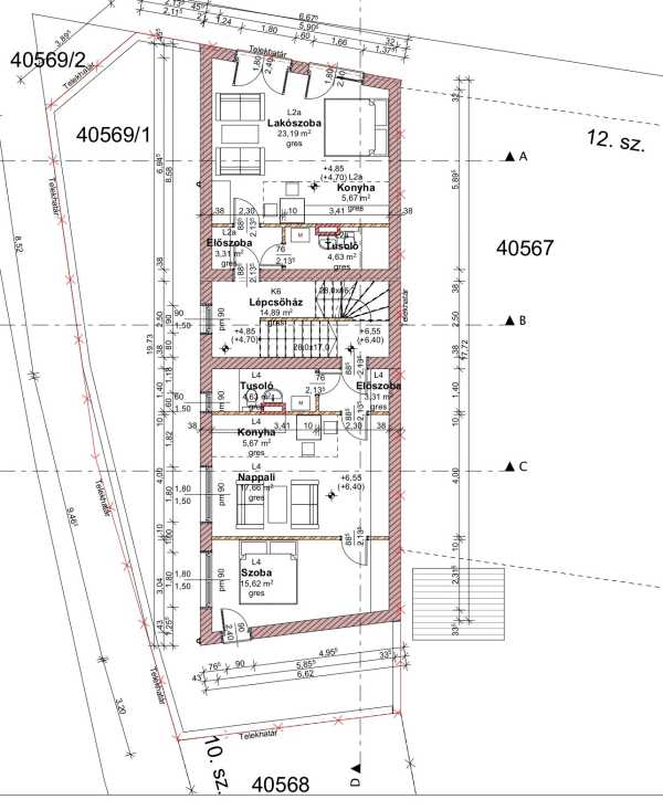
Képzelje el, hogy Pécs Belvárosa szomszédságában, egy frekventált utcában új építésű lakás várja, amely egyszerre kínál álomotthont családosoknak és lenyűgöző befektetési lehetőséget! Ha egy gyorsan megtérülő ingatlanra vágyik, itt a tökéletes választás, ez a lakás azonnal kiadható, akár szobánként is, hiszen minden szoba külön nyílik. A mindössze 10 perces sétára található egyetem vonzereje miatt a befektetők számára igazi kincs: ideális rövid távú szálláskiadáshoz, például turistáknak, vagy hosszútávú bérléshez hallgatóknak. A praktikus elrendezés, az újszerű állapot és a kivételes lokáció együtt garantálja, hogy befektetett pénze rövid időn belül kamatostul térüljön meg, ezen a környéken az ingatlanok szinte azonnal kiadhatók! Ez az otthon családosok és egyetemisták számára egyaránt csábító: a közelben lévő egyetem lehetővé teszi, hogy a hallgatók saját szobában tanulhassanak, szabadon választva csoporttársaikat, elkerülve a kollégiumok zsúfoltságát. A modern hőszivattyús központi hűtő-fűtő rendszer és a padlófűtés ideális hőmérsékletet biztosít, míg a korszerű energetikai megoldások a rezsiköltséget minimálisra csökkentik, egy fenntartható és kényelmes jövő várja Önt! A fedett, zárt garázs (8 000 000 Ft) és a külön tároló (800 000 Ft) pedig tökéletes biztonságot nyújt autójának és értékei tárolására. Merüljön el ebben a sokoldalú lakásban, ahol a napfény és a gondosan megtervezett tér barátságos hangulatot teremt. Legyen szó családi életről vagy üzleti lehetőségről, ez az ingatlan minden igényt kielégít, és kiemelkedően jó helyen fekszik a belvárosi pezsgés és a nyugalom tökéletes egyensúlyában. Ne hagyja ki, hívjon most, és tegye valóra álmait, mielőtt más él ezzel a kivételes ajánlattal!
Lépjen velünk kapcsolatba!
Kocsis Attila
Büki Immobilien
A partner további hirdetései
Kapcsolatfelvételhez kattintson
A tétel adatlapján feltüntetett leírások a rendelkezésre álló információink alapján készültek. Az eszközök működőképességét, rejtett hibáit nem vizsgáltuk, azokról nincs tudomásunk. Kérjük, hogy licitálás előtt személyesen is tekintsék meg a megvásárolni kívánt tételeket, mert utólag nem tudunk reklamációt elfogadni. A szállítási és bontási költségek a vásárlót terhelik. A szállítást akkor lehet megkezdeni, ha az eladó az erre vonatkozó engedélyt megadta. A leütési ár nem tartalmazza az ÁFÁ-t és a vásárlói felárat.