2040 Budaörs Halom utca
Ingatlan sorszáma: 6994
1 554 444 Ft / m2
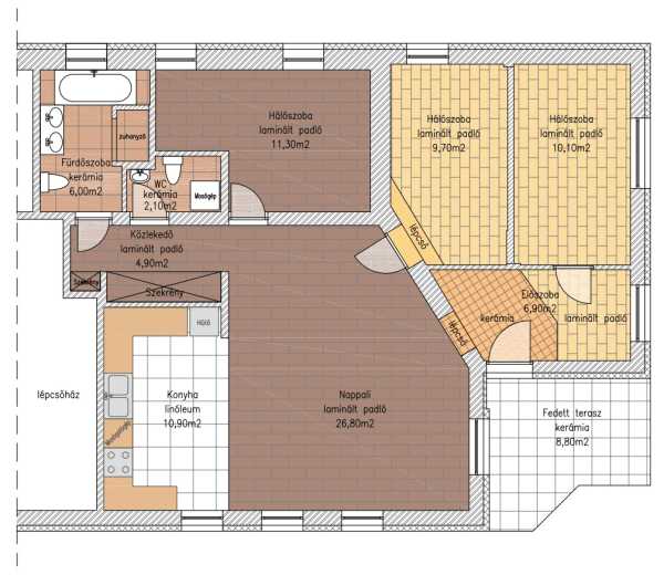
Kertkapcsolatos otthon Budaörs egyik legnyugodtabb részén – saját bejárattal, parkolóval, családbarát kialakítással Budaörs felsőkertvárosi, csendes utcájában eladásra kínálunk egy 90 m²-es, teraszos, kertkapcsolatos földszinti lakást egy rendezett, mindössze három lakásos társasházban. A ház 700 m2-es telken helyezkedik el, szintenként egy-egy lakás található. Az ingatlan egyik legnagyobb előnye, hogy az utcáról önálló kertkapun keresztül közelíthető meg. A lakás praktikus és élhető elrendezésű: - nagyméretű előszoba - 3 hálószoba (az egyikben dolgozósarokkal) - tágas, amerikai konyhás nappali - közlekedő, mely teljes hosszában beépíthető szekrényekkel - külön WC, ahol a mosó- és szárítógép is helyet kapott - fürdőszoba, melyben kád és zuhanyzó is található - fedett terasz Továbbá tartozik hozzá egy, a társasházon belül található száraz tároló helyiség, mely a szomszédokkal közös használatú és a kertben egy saját használatú fém kerti ház (biciklik, szerszámok tárolására). Kert: Az előszobából közvetlen kijárat nyílik a 9 m²-es fedett teraszra és a közös kertbe, amely ideális pihenésre, gyerekeknek játékra vagy barátokkal grillezésekhez. A kertben található hinta, homokozó és tűzrakóhely is. Parkolás: Automata kapuval ellátott, saját felszíni autóbeálló található a kertben, valamint további parkolási lehetőség van közvetlen a kertkapu előtt. Műszaki állapot - a teljes elektromos hálózat cseréje, fürdőszoba felújítás, konyhabútor csere, burkolatok cseréje megtörtént 2018-ban - modern műanyag nyílászárók vannak - redőny van minden hálószobában - szúnyogháló található minden ablakon és ajtón - kiépített riasztórendszer van Várom megkeresésüket!
Lépjen velünk kapcsolatba!
Száva Orsolya
Otthon Csoport
A partner további hirdetései
Kapcsolatfelvételhez kattintson
A tétel adatlapján feltüntetett leírások a rendelkezésre álló információink alapján készültek. Az eszközök működőképességét, rejtett hibáit nem vizsgáltuk, azokról nincs tudomásunk. Kérjük, hogy licitálás előtt személyesen is tekintsék meg a megvásárolni kívánt tételeket, mert utólag nem tudunk reklamációt elfogadni. A szállítási és bontási költségek a vásárlót terhelik. A szállítást akkor lehet megkezdeni, ha az eladó az erre vonatkozó engedélyt megadta. A leütési ár nem tartalmazza az ÁFÁ-t és a vásárlói felárat.