9172 Győrzámoly
Ingatlan sorszáma: 6991
1 015 547 Ft / m2
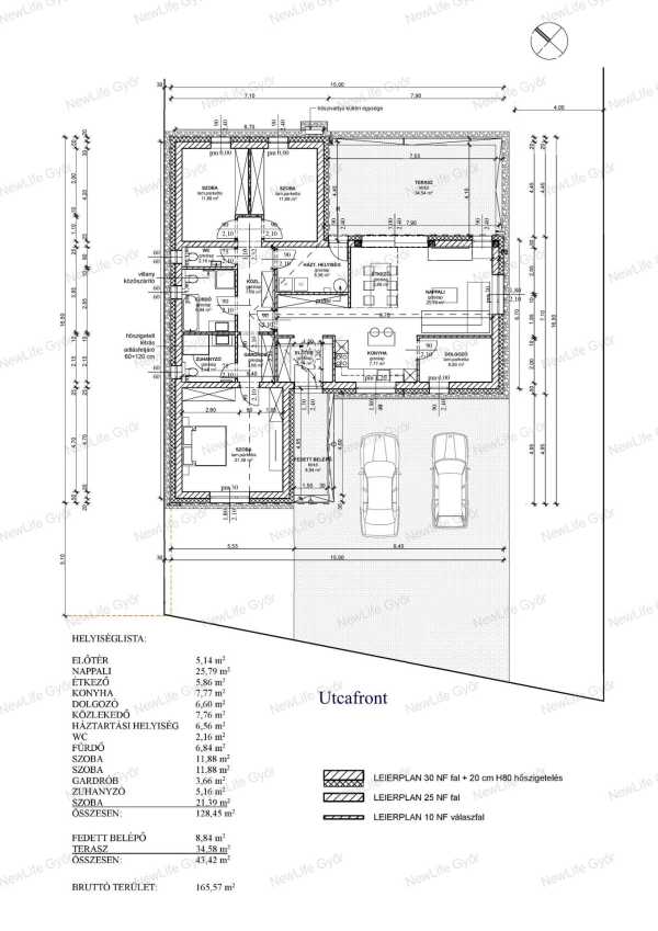
Az egyik legkedveltebb szigetközi településen, Győrzámolyon ajánlom megvételre ezt az 858m2-es telekre épülő 128 m2 alapterületű (+35nm terasz) 4 szobás, nappali-étkező-konyhás házat. Egy ingatlan, amely egyszerre otthon és értékálló befektetés. Fontosabb műszaki adatok: A ház 30NF falazóelemekből épül 12cm-es aljzatszigeteléssel, fafödémes (30cm födémszigetelés), a homlokzatra 20 cm vastag Drywit hőszigetelő rendszer kerül. Nyílászárói 6 légkamrás 3 rétegű hőszigetelt műanyag ablakok A fűtését és melegvíz ellátását hőszivattyú látja el padlófűtéses hőleadással. Miért érdemes megvenni? (A teljesség igénye nélkül) -modern stílusú ház, szép környezetben -négy szoba + nappali -gépesített konyhabútor -hűtő-fűtő klma -rejtett tokos, alumínium motoros redőnyök mindenhol -kívül színezett nyílászárók -okos ház előkészítés! -2 fürdő, 3 WC -hatalmas terasz -sík felületű, letisztult formavilágú tetőcserép -stb.. stb.., további információkkal kapcsolatban keressen! Várható átadás és az ingatlan ára: Fűtéskészen állapotban 2026 szeptember, vételár: 129.990.000 Ft Kulcsrakész állapotban 2026 december, vételár: 148.000.000 ft A telek méretéből adódóan tökéletesen alkalmas azoknak, akik szeretik a nagy területet, akik szeretnek kicsit kertészkedni, vagy akik csak élvezni akarják a kész kertet. Lokáció A Község a megyeszékhelytől, Győrtől 10 km-re található csodálatos környezetben közvetlenül a Mosoni-Duna és az Öreg Duna szomszédságában. Győr autóval és kerékpárral is gyorsan megközelíthető a munkahely eléréséhez, valamint az esetleges bevásárlás és mindennapi ügyek intézéséhez is nagyon közel van, bár helyben is minden szolgáltató adott az általános igények kielégítésére. Valamint a hétköznapok kényelméhez hozzájárul a közeli élelmiszerüzlet, játszótér, és egyéb szolgáltatók. Gyalogtávolságon belül a háziorvosi szolgálat, gyógyszertár és állatorvosi rendelő is elérhető. A főút mellett húzódik a kerékpárút mely egész Szigetközt átszeli, így kötve össze Győrt Mosonmagyaróvárral. A közelben rengeteg kikapcsolódási lehetőség található, többek között, lovarda, horgásztó, teniszpálya, gokart pálya és nem mellesleg a közeli Mosoni-Duna part és szabad strandja. Nagyon sok szép kirándulóhely található a Szigetközben, emiatt is vonzó sokaknak ez a település. Ideális, ha: ✔️ egy élhető családi otthont keresel ✔️ fontos számodra a nyugodt környezet, de nem szeretnél elszigetelődni ✔️ szeretnél egy modern, minden igényt kielégítő otthont magadnak Ügyfeleimnek az adásvétel teljes körű lebonyolítását vállalom. Ügyvédi szolgáltatással, díjmentes jogi tanácsadással, bank független Otthon Start, CSOK+, Babaváró hitel, kamattámogatott és piaci hitelek ügyintézésével állok rendelkezésükre. Ha szívesen megnéznéd, hívj bizalommal akár hétvégén is! 06-30/156-6513 Ügyfeleimnek az adásvétel teljes körű lebonyolítását vállalom. Az adatok a tulajdonosok által közölt információk alapján kerültek rögzítésre. Amennyiben a ház, vagy bármely a kínálatunkban található ingatlan felkeltette az érdeklődését, hívjon a megadott telefonszámon. Ügyvédi szolgáltatással, díjmentes jogi tanácsadással, bank független Otthon Start, CSOK+, Babaváró hitel, kamattámogatott és piaci hitelek ügyintézésével állok rendelkezésükre.
Lépjen velünk kapcsolatba!
Takács Zoltán Gábor
NewLife Győr
A partner további hirdetései
Kapcsolatfelvételhez kattintson
A tétel adatlapján feltüntetett leírások a rendelkezésre álló információink alapján készültek. Az eszközök működőképességét, rejtett hibáit nem vizsgáltuk, azokról nincs tudomásunk. Kérjük, hogy licitálás előtt személyesen is tekintsék meg a megvásárolni kívánt tételeket, mert utólag nem tudunk reklamációt elfogadni. A szállítási és bontási költségek a vásárlót terhelik. A szállítást akkor lehet megkezdeni, ha az eladó az erre vonatkozó engedélyt megadta. A leütési ár nem tartalmazza az ÁFÁ-t és a vásárlói felárat.