9025 Győr Pinnyéd
Ingatlan sorszáma: 6969
1 340 426 Ft / m2
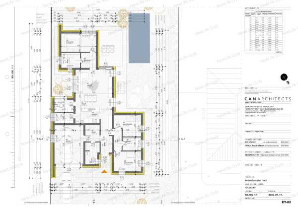
Pinnyéd csendes, újonnan kialakított és közművesített zsákutcájában új építésű luxus házak eladók. A házak a legmagasabb minőséget képviselő anyagokkal, a mai modern technológiák által kerül kivitelezésre. A kiváló hő és hangszigetelést 3 rétegű műanyag ablakok és a 20 cm vastagságú homlokzatszigetelés fogja biztosítani, amivel a Porotherm falazat lesz ellátva. A fűtésről és hűtésről hőszivattyú gondoskodik, a hőleadás padlófűtéssel, a hűtés pedig mennyezethűtéssel történik. Ezek kombinációja egy teljeskörű, modern klímamegoldást nyújt, amelyek hosszútávon garantálják a kényelmet és az alacsony üzemeltetési költségeket. Elosztása: Előtér 7,88 nm Tároló 4,71 nm Háztartási helyiség 5,67 nm Garázs 22,55 nm Közlekedő 3,34 nm Félszoba 5,05 nm Szoba1 10,32 nm Fürdőszoba 4,96 nm Szoba2 10,93 nm Konyha 10,9 nm Étkező 7,56 nm Nappali 20,3 nm Kamra 4,03 nm Gardrób 4,41 nm Fürdőszoba 5,09 nm Szoba3 13,12 nm Összesen: nettó: 140,88 nm Az ingatlanhoz tartozik továbbá egy fedett terasz, valamint medence, ami a hőszivattyú segítségével fűthető. Napelemes rendszer kérhető, amennyiben a leendő tulajdonos arra igényt tart. A hirdetésben szereplő tervdokumentáció tájékoztató jellegű, a ház paramétereitől és gépészeti felszereltségétől el lehet térni, így természetesen az ár is változhat. Az ár emeltszintű fűtéskész állapotra vonatkozik, de igény esetén kulcsrakész befejezés is kérhető. Győr-Pinnyéd valóban egy kifejezetten kedvelt, családias kertváros, amely a Rábca bal partján fekszik. Népszerűségét elsősorban a természetközeli elhelyezkedésének köszönheti. Amennyiben szeretne egy exkluzív, prémium minőségű családi ház tulajdonosa lenni, mindezt egy idilli környezetben, keressen bizalommal! Még 8 db házra van lehetőség előszerződni, ne maradjon le!
Lépjen velünk kapcsolatba!
Kozma Ádám
NewLife Győr
A partner további hirdetései
Kapcsolatfelvételhez kattintson
A tétel adatlapján feltüntetett leírások a rendelkezésre álló információink alapján készültek. Az eszközök működőképességét, rejtett hibáit nem vizsgáltuk, azokról nincs tudomásunk. Kérjük, hogy licitálás előtt személyesen is tekintsék meg a megvásárolni kívánt tételeket, mert utólag nem tudunk reklamációt elfogadni. A szállítási és bontási költségek a vásárlót terhelik. A szállítást akkor lehet megkezdeni, ha az eladó az erre vonatkozó engedélyt megadta. A leütési ár nem tartalmazza az ÁFÁ-t és a vásárlói felárat.