9173 Győrladamér
Ingatlan sorszáma: 6907
944 094 Ft / m2
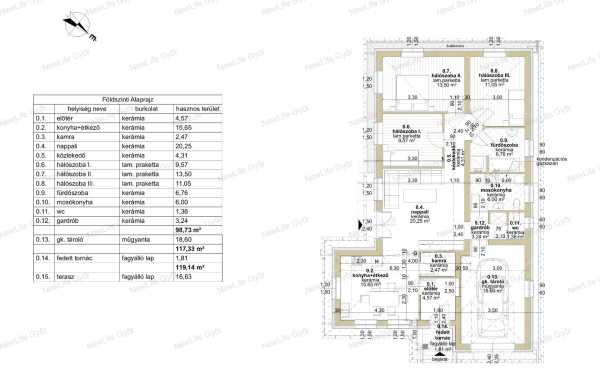
Győrladaméron, családi házas övezetben, megbízható, igényes kivitelezőtől kínálom megvételre ezt az 501 m2-es telekre épülő 127 m2 alapterületű 3 hálószoba+ nappali-étkező-konyhás újépítésű házat, 18nm-es garázzsal és 16m2-es terasszal. A ház 30-as falazóelemekből épült, a homlokzatra 15 cm vastag hőszigetelő rendszer kerül. A tető fafödémes, 30cm-es födémszigeteléssel. A nyílászárók 3 rétegű hőszigetelt műanyag ablakok. A fűtését kondenzációs gázkazán látja majd el. Az ingatlan kulcsrakészen, hűtő-fűtő klímával kerül átadásra. Ár: 119.900.000Ft kulcsrakész állapotban, ami tartalmazza a telekárat és a közművek díját is. A telek mérete ideális – pont akkora, hogy szép és élhető legyen, mégis könnyen karbantartható. Környezet és elhelyezkedés? Első osztályú! Győrladamér a Szigetköz szívében található, csupán 10 km-re Győrtől, mégis messze a város zajától. A környéken lovarda, horgásztó, szabadstrand, és végtelen mennyiségű kirándulóhely vár. A Szigetköz tele van felfedeznivalóval! A településen belül boltok, játszóterek, orvosi rendelő, posta, állatorvosi rendelő és egyéb szolgáltatók mind könnyedén elérhető – autó nélkül is! A közeli kerékpárút összeköti a települést Győrrel és Mosonmagyaróvárral, így akár biciklivel is elintézhető a bevásárlás vagy a munkába járás. Ez a ház ideális választás, ha: ✔️ egy élhető családi otthont keresel ✔️ fontos számodra a nyugodt környezet, de nem szeretnél elszigetelődni ✔️ szeretnél azonnal költözni, felújítási, vagy építkezési munkák nélkül Az ingatlan szinte azonnal költözhető – ne maradj le róla! Tökéletes választás családosoknak, természetkedvelőknek vagy akár azoknak is, akik csak végre hazatalálnának. Ne halogasd! Hívjon, és nézze meg személyesen ezt a hangulatos otthont – akár hétvégén is szívesen megmutatom! Vegye igénybe a 2026-ban igényelhető családtámogatási lehetőségeket amennyiben szükség van rá. Spóroljon meg milliókat az illetékfizetés elengedésével, valamint a kedvezményes hitel lehetőséggel! Ügyfeleimnek az adásvétel teljes körű lebonyolítását vállalom. Amennyiben a ház, vagy bármely a kínálatunkban található ingatlan felkeltette az érdeklődését, hívjon a megadott telefonszámon. Ügyvédi szolgáltatással, díjmentes jogi tanácsadással, bank független Otthon Start, CSOK+, Babaváró hitel, kamattámogatott és piaci hitelek ügyintézésével állok rendelkezésükre.
Lépjen velünk kapcsolatba!
Takács Zoltán Gábor
NewLife Győr
A partner további hirdetései
Kapcsolatfelvételhez kattintson
A tétel adatlapján feltüntetett leírások a rendelkezésre álló információink alapján készültek. Az eszközök működőképességét, rejtett hibáit nem vizsgáltuk, azokról nincs tudomásunk. Kérjük, hogy licitálás előtt személyesen is tekintsék meg a megvásárolni kívánt tételeket, mert utólag nem tudunk reklamációt elfogadni. A szállítási és bontási költségek a vásárlót terhelik. A szállítást akkor lehet megkezdeni, ha az eladó az erre vonatkozó engedélyt megadta. A leütési ár nem tartalmazza az ÁFÁ-t és a vásárlói felárat.