3770 Sajószentpéter Kertváros
Ingatlan sorszáma: 6903
569 231 Ft / m2
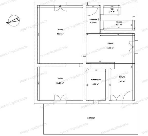
Eladóvá vált egy 65 m²-es, kivételes állapotú tégla lakás Sajószentpéter kedvelt kertvárosi részén – ideális választás pároknak vagy kisebb családoknak! Ez az ingatlan 2021-ben műszakilag is teljes körű felújításon esett át, ami a mai piacon hatalmas értéket képvisel: - Teljes víz- és elektromos hálózat cserélve - Új kondenzációs kazán és radiátorok - Padlófűtés a konyha-étkezőben és az előszobában – extra komfort a mindennapokban - Az előkert térkövezéséhez a burkolat már megvásárolva A lakás kelet–nyugati tájolásának köszönhetően egész nap világos, napfényes életteret biztosít. Két szoba gondoskodik a kényelmes elrendezésről, a cirkófűtés pedig gazdaságos fenntartást tesz lehetővé. Dupla garázs – két autó számára biztosított parkolás, ami ebben a környezetben igazi ritkaság! Az ingatlan jó alapállapotú külsővel rendelkezik, így akár saját stílusára formálhatja, miközben a legköltségesebb műszaki felújításokon már nem kell aggódnia. Ha egy stabil szerkezetű, korszerűsített, világos otthont keres Sajószentpéter Kertvárosában, amely azonnal költözhető és hosszú távon értékálló – ez az Ön lehetősége! Hívjon bizalommal a részletekért és megtekintésért!
Lépjen velünk kapcsolatba!
Kozák Csaba
Newex Ingatlaniroda
A partner további hirdetései
Kapcsolatfelvételhez kattintson
A tétel adatlapján feltüntetett leírások a rendelkezésre álló információink alapján készültek. Az eszközök működőképességét, rejtett hibáit nem vizsgáltuk, azokról nincs tudomásunk. Kérjük, hogy licitálás előtt személyesen is tekintsék meg a megvásárolni kívánt tételeket, mert utólag nem tudunk reklamációt elfogadni. A szállítási és bontási költségek a vásárlót terhelik. A szállítást akkor lehet megkezdeni, ha az eladó az erre vonatkozó engedélyt megadta. A leütési ár nem tartalmazza az ÁFÁ-t és a vásárlói felárat.