3770 Sajószentpéter
Ingatlan sorszáma: 6810
474 627 Ft / m2
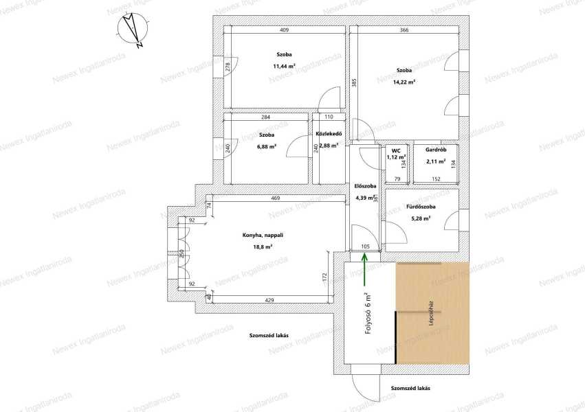
Ez a 67 m²-es, 2005-ben ráépített tetőtéri lakás kiváló lehetőség mindazok számára, akik modern kialakítású, jó állapotú és élhető otthont keresnek Miskolcon. A fiatal párok és kisebb családok számára ideális elrendezésű ingatlan világos terekkel és barátságos atmoszférával várja új tulajdonosát. A lakásban két szoba és egy félszoba található, amelyeket a kelet–nyugati tájolásnak köszönhetően egész nap napfény jár át. A korszerű cirkó fűtés biztosítja a komfortos hőmérsékletet, míg a mindössze 7 500 Ft-os közös költség rendkívül kedvező fenntartást kínál. A parkolás az utcán díjmentesen megoldható. A lakás bútorozatlan állapotú, így az új tulajdonos teljes mértékben saját igényei és ízlése szerint alakíthatja ki a belső tereket. Ez az ingatlan valódi lehetőség azok számára, akik napfényes, praktikus és értékálló otthont szeretnének. Tekintse meg személyesen, és fedezze fel a benne rejlő lehetőségeket!
Lépjen velünk kapcsolatba!
Kozák Csaba
Newex Ingatlaniroda
A partner további hirdetései
Kapcsolatfelvételhez kattintson
A tétel adatlapján feltüntetett leírások a rendelkezésre álló információink alapján készültek. Az eszközök működőképességét, rejtett hibáit nem vizsgáltuk, azokról nincs tudomásunk. Kérjük, hogy licitálás előtt személyesen is tekintsék meg a megvásárolni kívánt tételeket, mert utólag nem tudunk reklamációt elfogadni. A szállítási és bontási költségek a vásárlót terhelik. A szállítást akkor lehet megkezdeni, ha az eladó az erre vonatkozó engedélyt megadta. A leütési ár nem tartalmazza az ÁFÁ-t és a vásárlói felárat.