2017 Pócsmegyer
Ingatlan sorszáma: 6804
1 214 865 Ft / m2
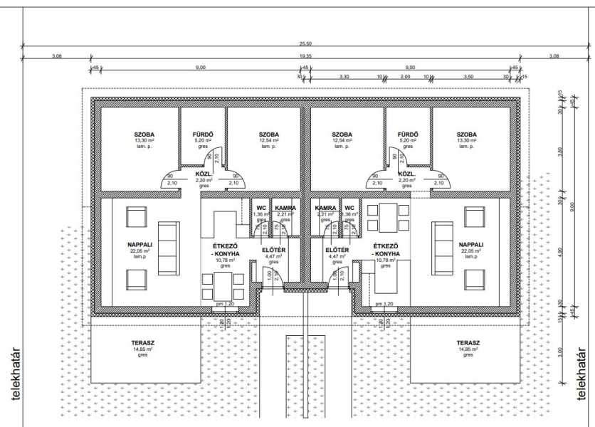
ÚJ ÉPÍTÉSŰ CSALÁDI HÁZ ELADÓ - Pócsmegyer, Surány IV.! Ház alapterülete - 74 m² Terasz Telekterület - 749 m² CSEND, NYUGALOM, BÉKE! NAGYSZERŰ ELHELYEZKEDÉS! BEJÁRHATÓ ÉPÍTKEZÉS! - Budapest közelsége üdülőövezeti környezetben - Iskola, óvoda, egészségház, komp, bolt nagyon közel található - Strand, teniszpályák, lovarda a közelben Közel 1500 nm-es telek, teljesen szeparált területtel! Helyiségek: Előszoba 2 db hálószoba Fürdőszoba Amerikai konyhás étkező Kamra Vendég mosdó Terasz Ez a csendes, vidéki környezet ideális a gyermekes családok számára, akik a nagyváros zajától távol szeretnének élni. Budapest közelsége miatt a városi élet nyújtotta lehetőségek könnyen elérhetők. A környéken számos oktatási intézmény és szabadidős tevékenység található, amelyek gazdagítják a családok mindennapjait. A telek különálló területként biztosít privát életteret, amely ideális a családi nyugalom megteremtéséhez. Az ingatlan elhelyezkedése mindenki számára vonzó lehet, aki ötvözni szeretné a természet közelségét és a kényelmet. **ÉPÜLET JELLEMZŐI KÍVÜLRŐL** Az ikerház 2025-ben készül el, 38-as porotherm téglából, amely 15 cm-es szigeteléssel rendelkezik. Az épület kívülről modern és korszerű, energiatakarékos megoldásokkal kombinálva. Déli tájolásának köszönhetően egész nap élvezhető a természetes fény. Az ingatlan kertre néző kilátással büszkélkedhet, ideális azoknak, akik szeretik a zöld környezetet. Az udvari beálló kényelmes parkolási lehetőséget biztosít az ott élők számára. Az ingatlan földszintes kialakítása lehetővé teszi a könnyű megközelíthetőséget és mozgást az épületben. Az épület összesen 74 nm-es lakóterülettel rendelkezik, amely tágas és kényelmes élettérré alakítható. **AZ INGATLAN JELLEMZŐI BELÜLRŐL** A házon belül három tágas szoba áll rendelkezésre, ideálisak családok számára. Az egész épület új építésű, ami modern és kifinomult megoldásokat kínál. A fűtés hőszivattyús rendszerrel van megoldva, ami környezetbarát és költséghatékony működést biztosít. Az AA energetikai besorolásnak köszönhetően az ingatlan alacsony energiafogyasztással működik. Az igényesen kialakított belső tér lehetőséget biztosít egyéni ízlés szerint történő berendezésre. Az ingatlanhoz egy 15 nm-es terasz tartozik, amely tökéletes hely a pihenésre és kikapcsolódásra. A nyitott terek tágas, világos otthont teremtenek, ami kellemes légkört biztosít az ott élők számára. A környéken sok az állandó lakos, de még vannak nyaralók is. Helyi lakosként csak ajánlani tudom a Duna-kanyar minden települését, itt minden nap felüdülés! /Tulajdoni lapon hétvégi ház, udvar/ BANKFÜGGETLEN hitelcentrumunk minden elérhető bank és hitelintézet ajánlatát versenyezteti az Ön kedvéért, ráadásul DÍJMENTESEN. A legjobb ajánlatokból végül Ön választhatja ki a nyertest. Munkatársaink sokéves szakmai tapasztalattal várják Önt, előre egyeztetve akár a normál munkaidő után is. Profi jogi háttér, energetikai tanusítvány! Hívjon bizalommal! H.B. NEWLY BUILT FAMILY HOUSE FOR SALE - Pócsmegyer, Surány IV! House area - 74 m² Terrace - Plot area - 749 m² PEACE, TRANQUILITY, CALMNESS! GREAT LOCATION! VISITABLE CONSTRUCTION! - Proximity to Budapest in a resort area - School, kindergarten, health center, ferry, and shops very nearby - Beach, tennis courts, and horse riding facility in the vicinity Located on a nearly 1500 sqm plot, with a fully fenced area! Rooms: Entrance hall 2 bedrooms Bathroom American style kitchen with dining area Pantry Guest toilet Terrace This quiet, rural area is ideal for families with children who want to live away from the hustle and bustle of the big city. Due to its proximity to Budapest, the opportunities offered by city life are easily accessible. The area boasts numerous educational institutions and recreational activities that enrich the daily life of families. The separate plot ensures a private living space, ideal for creating family tranquility. The location of the property can appeal to anyone who wants to combine the proximity of nature with comfort. **2. EXTERNAL CHARACTERISTICS OF THE BUILDING** The semi-detached house will be completed in 2025, built with 38 cm Porotherm bricks, featuring 15 cm insulation. The exterior of the building is modern and contemporary, combined with energy-efficient solutions. Thanks to its southern orientation, natural light is available all day. The property boasts garden views, ideal for those who love a green environment. The courtyard provides convenient parking for residents. The single-story design of the building allows for easy accessibility and movement. The building has a total living space of 74 sqm, which can be transformed into a spacious and comfortable living area. **3. INTERNAL FEATURES OF THE PROPERTY** Inside the house, three spacious rooms are available, ideal for families. The entire building is newly constructed, offering modern and sophisticated solutions. Heating is provided by a heat pump system, which ensures environmentally friendly and cost-effective operation. Thanks to the AA energy rating, the property operates with low energy consumption. The tastefully designed interior allows for furnishing according to individual preferences. The property includes a 15 sqm terrace, perfect for relaxation and leisure. The open spaces create a spacious, bright home, providing a pleasant atmosphere for the residents. The area has many permanent residents, but vacationers are still present as well. As a local resident, I can only recommend all the towns of the Danube Bend for a rejuvenating experience every day! /Classified as a holiday house and yard on the property sheet/ Our independent loan center competes with the offers from all available banks and financial institutions for your benefit, completely FREE OF CHARGE. You can choose the winning offer from the best options available. Our colleagues, with years of professional experience, await you, even after regular working hours by prior arrangement. Professional legal background, energy certificate! Call with confidence! H.B. NEUBAU-FAMILIENHAUS ZU VERKAUFEN - Pócsmegyer, Surány IV.! Hausfläche - 74 m² Terrasse - Grundstücksfläche - 749 m² RUHE, FRIEDEN, GELASSENHEIT! GROßARTIGE LAGE! BEGEHBARER BAU! - Nähe von Budapest in einem Erholungsgebiet - Schule, Kindergarten, Gesundheitszentrum, Fähre und Geschäft in unmittelbarer Nähe - Strand, Tennisplätze, Reitstall in der Nähe Auf einem fast 1500 m² großen Grundstück mit komplett eingezäunter Fläche! Räumlichkeiten: Vorraum 2 Schlafzimmer Badezimmer Wohnküche Speisekammer Gäste-WC Terrasse Diese ruhige, ländliche Umgebung ist ideal für Familien mit Kindern, die fernab des Großstadtlärms leben möchten. Dank der Nähe zu Budapest sind die Möglichkeiten des Stadtlebens leicht erreichbar. In der Umgebung gibt es zahlreiche Bildungseinrichtungen und Freizeitaktivitäten, die den Familienalltag bereichern. Das Grundstück bietet als separate Fläche privaten Lebensraum, ideal für die Schaffung familiärer Ruhe. Die Lage der Immobilie könnte für alle attraktiv sein, die die Nähe zur Natur mit Komfort verbinden möchten. **2. MERKMALE DES GEBÄUDES VON AUSSEN** Das Doppelhaus wird 2025 fertiggestellt und aus 38er Porotherm-Ziegeln mit 15 cm Isolierung gebaut. Das Gebäude ist modern und zeitgemäß, kombiniert mit energieeffizienten Lösungen. Dank der Südausrichtung genießt man den ganzen Tag über natürliches Licht. Die Immobilie bietet einen Blick auf den Garten und ist ideal für diejenigen, die die grüne Umgebung lieben. Der Hof bietet bequeme Parkmöglichkeiten für die Bewohner. Die ebenerdige Bauweise ermöglicht einfachen Zugang und Bewegung im Gebäude. Das Gebäude verfügt über insgesamt 74 m² Wohnfläche, die zu einem geräumigen und komfortablen Lebensraum gestaltet werden kann. **3. MERKMALE DER IMMOBILIE VON INNEN** Im Haus stehen drei geräumige Zimmer zur Verfügung, ideal für Familien. Das gesamte Gebäude ist neu gebaut und bietet moderne und elegante Lösungen. Die Heizung erfolgt über ein Wärmepumpensystem, das umweltfreundlichen und kosteneffizienten Betrieb gewährleistet. Dank der AA-Energieklassifizierung arbeitet die Immobilie mit niedrigem Energieverbrauch. Der anspruchsvoll gestaltete Innenraum bietet die Möglichkeit zur individuellen Einrichtung nach Geschmack. Zur Immobilie gehört eine 15 m² große Terrasse, die ein perfekter Ort zum Entspannen und Erholen ist. Die offenen Räume schaffen ein geräumiges und helles Zuhause und bieten eine angenehme Atmosphäre für die Bewohner. In der Umgebung gibt es viele ständige Bewohner, aber auch Ferienhäuser sind noch vorhanden. Als Anwohner kann ich alle Orte im Donauknie nur empfehlen – hier ist jeder Tag eine Erholung! /Im Grundbuch als Wochenendhaus, Hof eingetragen/ Unser bankunabhängiges Kreditzentrum vergleicht für Sie die Angebote aller verfügbaren Banken und Kreditinstitute, und das KOSTENLOS. Aus den besten Angeboten können Sie schließlich den Gewinner auswählen. Unsere Mitarbeiter mit langjähriger Berufserfahrung erwarten Sie, nach Absprache auch außerhalb der normalen Arbeitszeiten. Professionelles rechtliches Umfeld, Energieausweis! Rufen Sie uns vertrauensvoll an! H.B.
Lépjen velünk kapcsolatba!
                                                
                        Hajduné Borbála
                         PORTABELLA Ingatlaniroda
                        A partner további hirdetései
                        
Kapcsolatfelvételhez kattintson
                        
                        
                        A tétel adatlapján feltüntetett leírások a rendelkezésre álló információink alapján készültek. Az eszközök működőképességét, rejtett hibáit nem vizsgáltuk, azokról nincs tudomásunk. Kérjük, hogy licitálás előtt személyesen is tekintsék meg a megvásárolni kívánt tételeket, mert utólag nem tudunk reklamációt elfogadni. A szállítási és bontási költségek a vásárlót terhelik. A szállítást akkor lehet megkezdeni, ha az eladó az erre vonatkozó engedélyt megadta. A leütési ár nem tartalmazza az ÁFÁ-t és a vásárlói felárat.