2800 Tatabánya Felsőgalla
Ingatlan sorszáma: 6779
765 306 Ft / m2
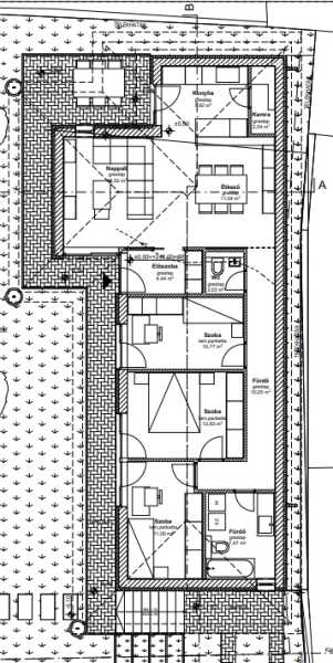
Tatabányán új építésű minden igényt kielégítő családi ház eladó. Műszaki paraméterek falak szerkezete a graphite polisztirol „zsaluelemes” kibetonozott rendszer kívül 10-15 cm hőszig+statikailag szükséges kibetonozás+5cm hőszig (belül) mennyezeti csövezés, minden – nem vizes – helyiségben fűtő-hűtő mennyezet; radiátoros v padlófűtés csak fürdőben+wc-ben hűtés-fűtés hőszivattyús rendszerrel használati melegvíz készítés villanybojlerrel tetőn (a főépítésszel jóváhagyatott) színes betoncserép geo tarifás áramvételezés a hőszivattyúhoz, norm. tarifás az egyéb fogyasztáshoz, a ház belső rendszerét így tervezzük egyelőre napelemes rendszer nem tervezendő, de lehet, hogy később kiépítésre kerül a garázs födém alá felnyitott garázskapu alatt min. 2,0m tiszta belmagasság ablakok műanyag szerkezetű, kívül színes (szürke), belül fehér, 3 rétegű üvegezéssel bejárati ajtó Hörmann fém vértezetű (ablakok színével kb egyező színben) + oldalvilágító garázskapu Hörmann szekcionált, fém vértezetű (színezett) garázst nem fűtjük, kívülről a vízszigetelés védelme érdekében 5cm hősziggel hőszigeteljük + drain lemez felületszivárgót rakunk a földvisszatöltés előtt; garázs alaplemeze vízzáró beton; falai mon. vb. + kívülről szórt bitumenes szigetelés; mon.vb. födém lejtésben kialakított felső síkkal + bitumenes (csap. víz elleni) lemez szigeteléssel + hősziggel + drain lemezzel látjuk el garázs melletti lépcső+támfalak a garázstól függetlenül/dilatálva kialakított vízzáró vb szerkezettel; lépcsőn kent szigeteléssel + csúszásmentes fagyálló lapburkolattal; ahol lehet a támfalak natúr látszóbeton felülettel későbbiekben tetőre rakható napelemes rendszer elvi lehetőségével Irányár: 75 M Ft Azonosító: 1118/7
Lépjen velünk kapcsolatba!
Vas István
Turul Ingatlaniroda
A partner további hirdetései
Kapcsolatfelvételhez kattintson
A tétel adatlapján feltüntetett leírások a rendelkezésre álló információink alapján készültek. Az eszközök működőképességét, rejtett hibáit nem vizsgáltuk, azokról nincs tudomásunk. Kérjük, hogy licitálás előtt személyesen is tekintsék meg a megvásárolni kívánt tételeket, mert utólag nem tudunk reklamációt elfogadni. A szállítási és bontási költségek a vásárlót terhelik. A szállítást akkor lehet megkezdeni, ha az eladó az erre vonatkozó engedélyt megadta. A leütési ár nem tartalmazza az ÁFÁ-t és a vásárlói felárat.