5000 Szolnok Belváros
Ingatlan sorszáma: 6754
830 189 Ft / m2
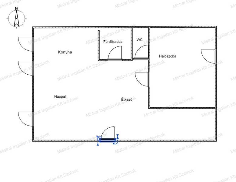
Szolnok belvárosában eladó egy 53 m2-es 2 szobás lakás ! Az ingatlan adatai: - 2. emeleti lift nincs - tetőtéri lakás - amerikai konyhás nappali - műanyag nyílászárók - fűtése gázcirkós radiátoros - klmás - bútorozott, gépesített - beépített gardrob szekrények - közös tároló Jöjjön nézzük meg együtt !
Lépjen velünk kapcsolatba!
Drahos Éva
Mistral Ingatlan Kft Szolnok
A partner további hirdetései
Kapcsolatfelvételhez kattintson
A tétel adatlapján feltüntetett leírások a rendelkezésre álló információink alapján készültek. Az eszközök működőképességét, rejtett hibáit nem vizsgáltuk, azokról nincs tudomásunk. Kérjük, hogy licitálás előtt személyesen is tekintsék meg a megvásárolni kívánt tételeket, mert utólag nem tudunk reklamációt elfogadni. A szállítási és bontási költségek a vásárlót terhelik. A szállítást akkor lehet megkezdeni, ha az eladó az erre vonatkozó engedélyt megadta. A leütési ár nem tartalmazza az ÁFÁ-t és a vásárlói felárat.